Se trata de un solar con mucha pendiente y con una alta presencia de arbolado y sotobosque. El proyecto pretende edificar una casa sin estropear las características propias del lugar. La casa se situará sobre una gran plataforma de roca existente. Esta plataforma también se utilizará como salida y jardín de la casa.
Los arquitectos y los promotores coincidimos en querer aprovechar los pequeños rellanos naturales ya existentes conservando así la fisonomía del bosque y no hacer grandes movimientos de tierras para crear plataformas artificiales ajardinadas.
El único movimiento de tierras será un camino-rampa que cruzará el solar de un extremo a otro en diagonal y de manera explícitamente artificial servirá para comunicar la calle con los diferentes niveles de la parcela.
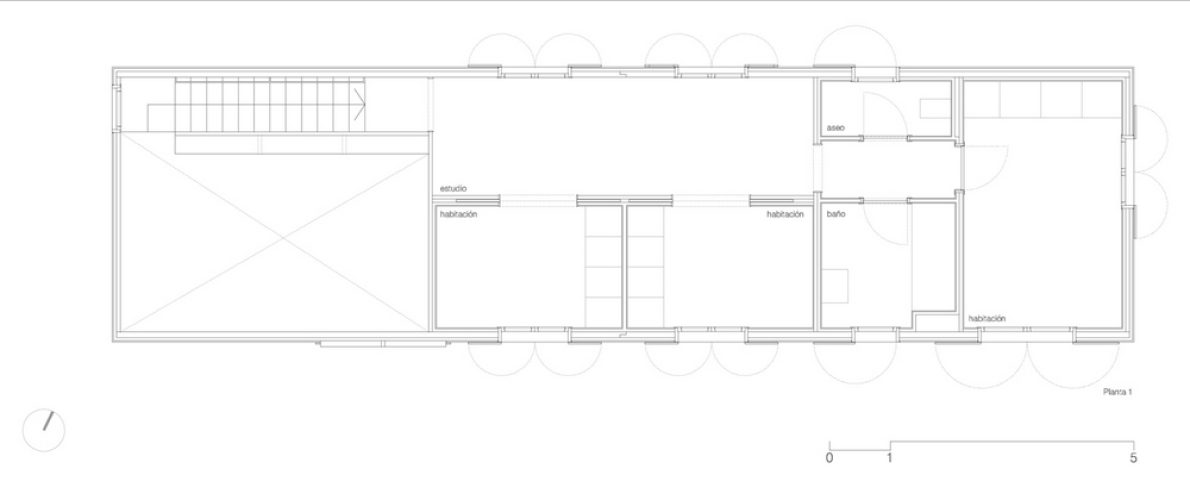
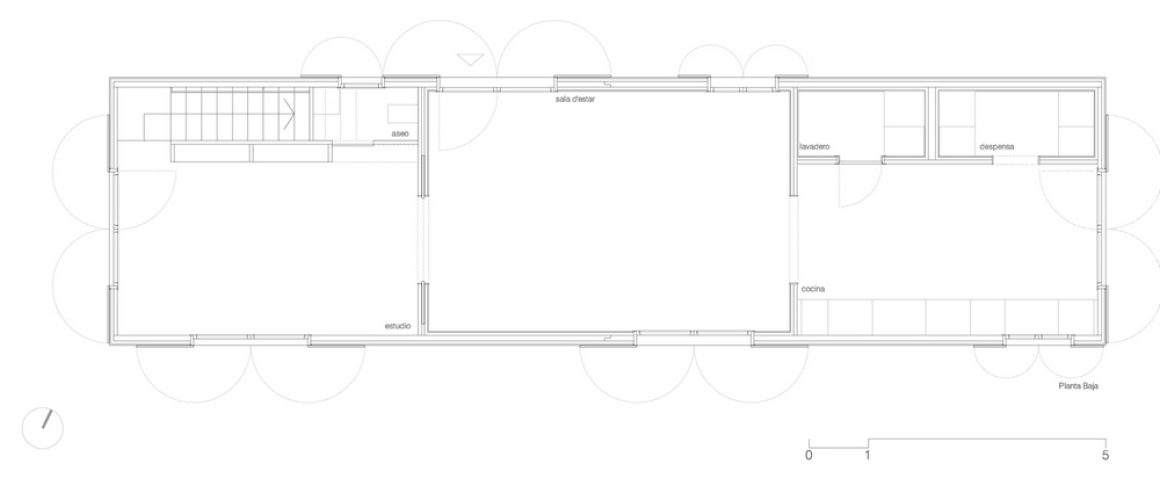
La distribución interior de la casa se basa en una secuencia lineal de espacios de diferentes proporciones asociados a la estructura, con grandes huecos de puertas correderas y pasos abiertos entre ellos que permiten una gran libertad de relación y de utilización.
La casa puede funcionar como un gran espacio o como una secuencia de espacios privados bien relacionados. La cimentación será la propia roca junto con dos riostras de hormigón que fijaran la casa a la piedra y permitirán separarla del terreno creando un espacio intermedio permanentemente ventilado.
La casa se construirá con estructura de madera laminada formada por paneles de gran formato tipo KLH que servirán para resolver paredes y techos. Este sistema se comporta como una estructura difusa donde no hay una jerarquía o estructura cartesiana de descenso de cargas sino que toda la estructura trabaja en conjunto –cómo una gran biga-.
Este modelo estructural nos permite un dimensionado muy eficiente, así como la posibilidad de hacer grandes vuelos. En nuestro caso nos ha permitido articular la geometría de la roca y de la casa, al mismo tiempo que nos ha hecho ahorrar y minimizar mucho la cimentación.
Este sistema estructural permite una disminución muy importante de peso, de materia y de energía incorporada y, por lo tanto, las emisiones de CO2 asociadas a la cimentación y estructura del edificio. La facilidad, la rapidez y el ahorro de agua que proporciona el montaje en seco, han permitido montar toda la construcción desde la calle y ha reducido mucho el coste y tiempo de la obra. La madera laminada es un material renovable, un sistema desmontable y, por lo tanto, reutilizable y reciclable, teniendo un ciclo de vida prácticamente cerrado.
Los paneles de madera laminada pueden quedar vistos en el interior de la vivienda en paredes, techos y suelos. Para reducir costes, en los revestimientos y acabados se ha procurado dejar el máximo número de paramentos vistos. Las instalaciones están ocultas pero sólo se han trasdosado con cartón-yeso los paramentos de las estancias que distribuyen las instalaciones de la casa. Finalmente, la mitad de las estancias han quedado con la estructura vista en todos sus paramentos.
Todas las fachadas son ventiladas y acabadas con madera de conífera del tipo pino de Flandes. Los huecos también están resueltos con carpinterías de madera protegidas con postigos practicables. La transpiración de la fachada queda garantizada mediante una lámina tipo TYBEK, transpirable, que protege la madera.
La cubierta es plana para reducir el impacto visual de la casa desde la calle. La transpiración de la cubierta se resuelve mediante una lámina de drenaje que crea una pequeña cámara ventilada. El resultado final es un volumen de madera sobre una gran roca, en medio del bosque que garantiza la naturalidad de la intervención.
Fotógrafo: Starp Estudi
[unitegallery Casa205]


























