La vivienda se ubica en un condominio entre Pucón y Caburga cercano al Rio Trancura. El terreno tiene una suave pendiente y la presencia de dos grandes robles que caracterizan el predio entre los cuales se decide emplazar la vivienda.
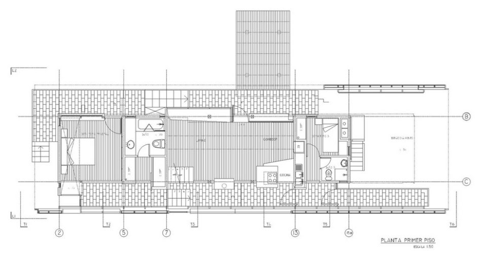
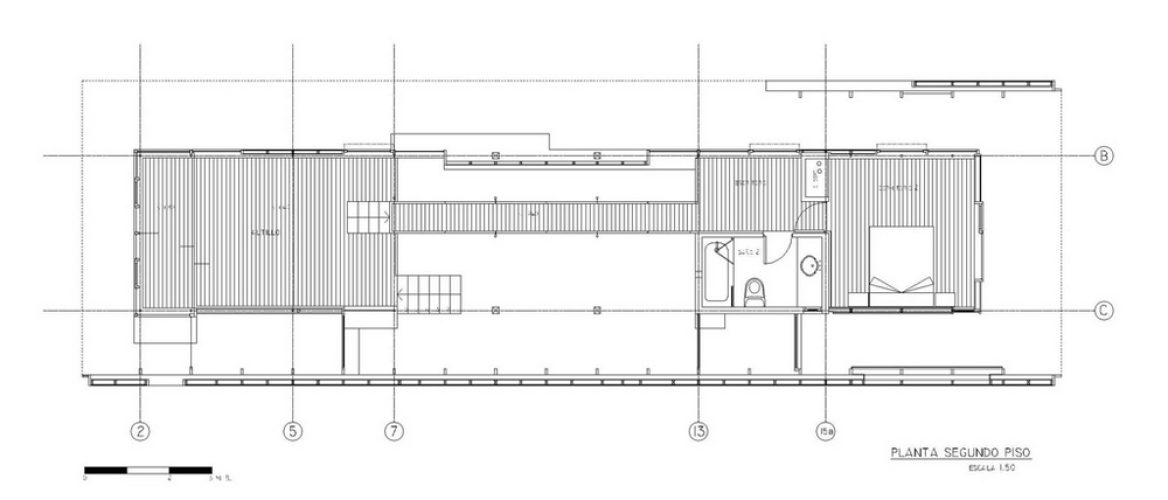
Se trata de una segunda vivienda para una pareja mayor con hijos ya adultos. La casa debía funcionar tanto para esta pareja sola (la mayor cantidad de veces) como con invitados de distinto número. El programa se constituye de: un gran recinto jerárquico living- comedor -cocina; un altillo conectado a este medio piso más arriba; dos dormitorios de iguales dimensiones en los extremos de la vivienda; una pequeña pieza de servicio junto al acceso; un estacionamiento techado que forma parte del volumen; y una terraza corrida al nororiente.
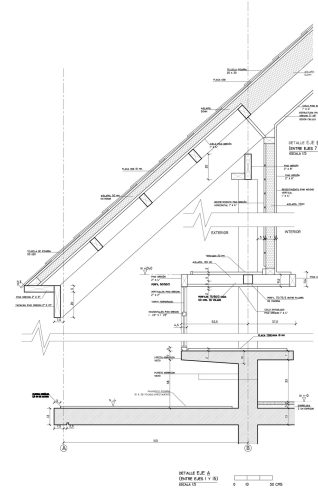
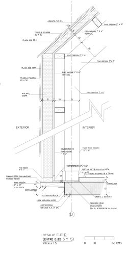
La vivienda se construye mediante dos operaciones:
1) Construcción de un zócalo
Un zócalo de hormigón armado compuesto por sobrecimientos corridos, una losa de hormigón suspendida del terreno y dos núcleos definen la relación de la vivienda con el suelo.
2) La creación de una piel – envolvente:
Se trata de un pliegue muro- techo construido por una estructura de pino Oregón nacional, pilares – tijerales de 3”x6” cada 1.20 mts., costaneras de 2”x4” cada 55 cms aprox., revestimiento de pino Oregón de 1”x4”, aislamiento, placa osb, y revestimiento de tejuela de pizarra de 20 x 30 cms.. Este elemento mantiene una forma continua y simétrica en su corte transversal construyendo un galpón de aprox. 22x 6.5 mts de planta por 6 mts de alto en su cumbrera. Es más bien hermético hacia el sur-poniente y se abre hacia el nororiente.
La tensión entre la envolvente y el zócalo construye el vacío que define los lugares públicos de la casa y la relación con el paisaje.
[unitegallery Casa_dosrobles]























