Casa El Refugio nace como encargo de la Inmobiliaria Océano Sur para diseñar y construir una vivienda modular en el condominio Secreto de Topocalma, a 25 minutos de la playa de Puertecillo.
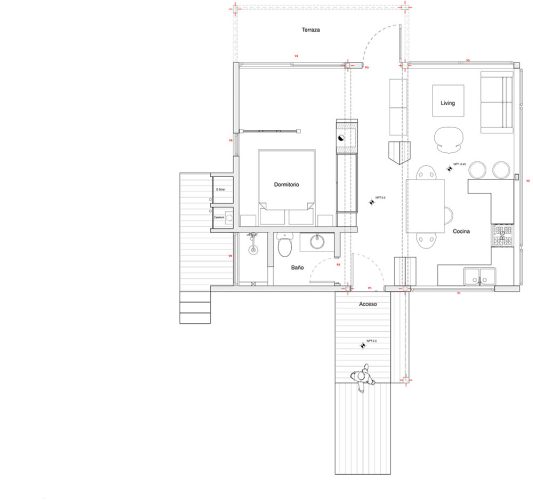
Este refugio dada su superficie de 45 m2 debía avocarse a lograr un diseño inteligente que permitiera el mejor uso del espacio interior. Para esto se desarrolló una arquitectura simple en la que la configuración de dos niveles diera el carácter más relevante del espacio.
Esta decisión permitió dos cosas importantes. Primero, logra hacer una distinción entre lo público y lo privado en la percepción del usuario, en una superficie reducida.
En segundo lugar, el desnivel le da uso de asiento a la plataforma en volado, tanto para la mesa de comedor como para sentarse hacia el estar y además entrega un espacio útil de guardado bajo la plataforma.
El nivel superior marca la circulación el dormitorio y baño, mientras que el nivel inferior está reservado para la cocina, comedor y estar. Utiliza un sistema de iluminación led y se abastece de energía en base a paneles solares.
La casa se orienta con la mayor fuerza hacia la vista privilegiada que entrega el lugar, abriendo su fachada principal en toda su dimensión y cerrando las otras al desarrollo de la vida interior.
El Refugio es una constatación de cómo en una superficie muy reducida ─un gesto espacial, el desnivel─ marca la forma de habitar una vivienda.
[unitegallery Obra_CasaElRefugio]



















