En un sitio agrícola degradado y plano, el valor del emplazamiento está dado mayoritariamente por sus vistas lejanas y no inmediatas. Por eso, LAND Arquitectos decidió crear, a través de la arquitectura, un paisaje nuevo e inmediato, lugares dentro del lugar, interactuando con el terreno propiamente tal.
Para esto aplicaron una simple estrategia denominada Finger Joint.
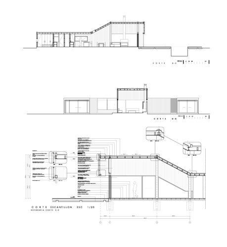
Concepto
Joint: Punto en el cual las partes de una estructura artificial se unen.
Arquitectura (artificial) + Terreno (plano artificial, terreno agrícola degradado)
La disposición de los volúmenes se entrelazan (finger Joint) con el terreno, modelando un nuevo paisaje. “Paisaje” se vuelve activo, ya que estos espacios verdes, sirven para ventilar y bajar la temperatura interior. Además protege la madera de la exposición más fuerte al sol (sombra de árboles), lo que retarda su envejecimiento.
El paisaje también se vuelve “activo” programáticamente. La separación de los volúmenes, crea espacios “vacíos” que sirven de distintas maneras a la casa. El espacio interior contenido por la nave central, se proyecta hacia los patios que lo rodean, extendiéndose hacia la naturaleza.
Las cabezas están orientadas hacia las principales vistas, a los cerros y viñedos.
Estrategias sustentables pasivas:
- Patios verdes (sombras)
- Ventilación cruzada y abertura a los vientos predominantes para enfriar la casa
- Muros ventilados de madera, color blanco
- Doble piel de celosía de madera hacia el poniente.
Fotografías ©Cristóbal Palma




















