En las medidas mínimas, un granero habitable, para lograr magnitudes mayores en la síntesis. Una piel de madera envolvente, construye una relación discreta con el paisaje circundante.
No irrumpe, se suma por asociación icónica con la construcción tradicional del sur de Chile
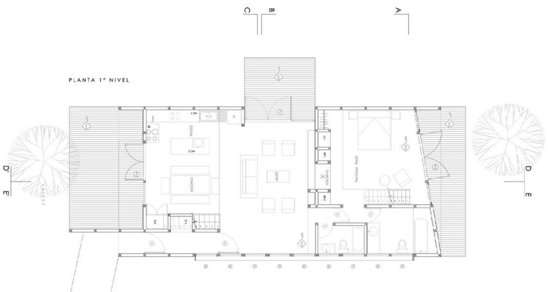
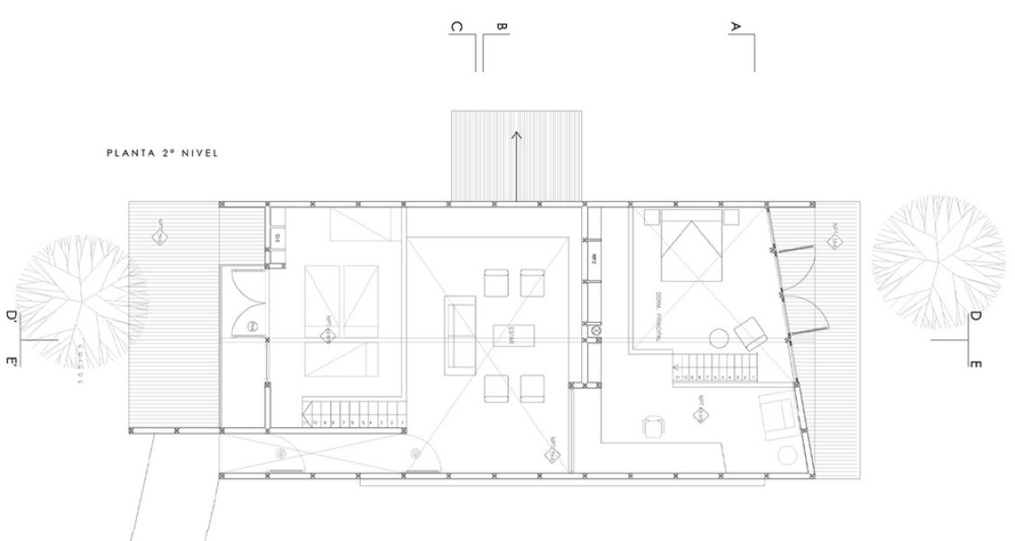
Esta casa galpón es una reinterpretación contemporánea del modelo de galpón tradicional del sur de Chile. El uso del entablado en los muros y techumbre genera una envolvente continua que da cabida a un interior trabajado en doble altura, con altillos y balcones al exterior.
Fotografias: Guy Wenborne
[unitegallery Casa_galpon]


























