Casa Maitencillo es una casa de veraneo en la costa de la V región, construida íntegramente en madera, donde ir a descansar contemplando el mar, rodeado de colores cálidos, otorgado por maderas nativas traídas desde Chiloé.
El Conjunto se plantea como volúmenes elevados, emplazados en la parte más alta de un terreno de 16m x35m, dejando la casa en una condición expectante. En el entorno se ve una variada tipología de viviendas, destacándose las construidas de madera sobre rollizos de pino dado el desnivel del cerro Tacna.
Adoptamos esta tipología y tomamos como nivel 0,0 el acceso posterior a la casa desde donde se arma la plataforma que soporta la vivienda, logrando en su fachada principal elevarse del terreno para buscar la vista al mar y armar los estacionamientos cubiertos bajo esta.
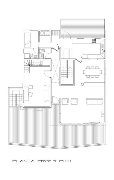
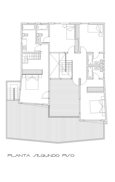
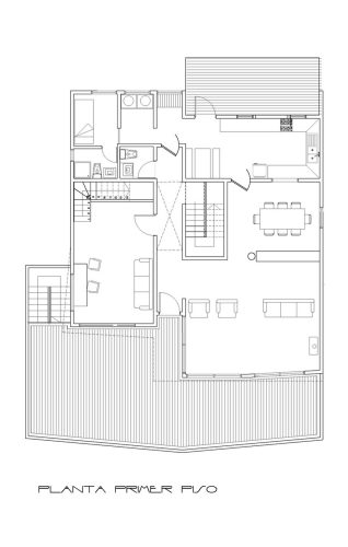
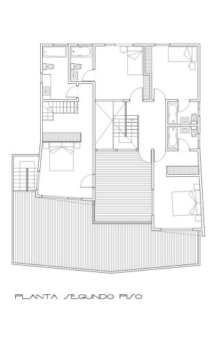
Sobre la plataforma se disponen 2 áreas: El departamento de los padres con estar, dormitorio, vestidor y baño; y el volumen familiar que contiene un gran estar comedor y amplia terraza, coronados por los dormitorios de sus 3 hijos y una segunda terraza más íntima que conecta los dormitorios y desde donde ya se logra ver en plenitud el mar.
La mirada principal de la vivienda es hacia el mar a través de grandes ventanales, hacia donde se disponen todos los recintos sociales a diferencia de las otras fachadas donde sus vanos son medidos y dispuestos según la necesidad de ventilación o asolamiento de los recintos de servicios.
La estructura gruesa de la vivienda es de maderas de Ciprés de las guaitecas, Ulmo y Pino impregnado. En su interior es revestida por terciados de maderas nativas, en pisos mosaicos de Ulmo rojo con tepa amarilla, que también está en los muros para dar calidez y alegría al interior.
[unitegallery Casa_maitencillo]



































