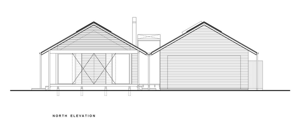
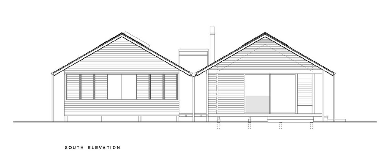
Shoal Bay es un asentamiento remoto en la accidentada costa este del sur de Hawkes. El edificio está diseñado para ser parte del entorno rural, se levanta del suelo y se sitúa a un costado del establo original, que ha servido a la bahía desde el 1900.
La vivienda es robusta pero acogedora a la vez y ofrece alojamiento sin pretensiones; es el tipo de lugar donde te quitas los zapatos y no debes preocuparte por ir dejando huellas de arena en el piso.
La vivienda está formada por dos pabellones ligeramente desplazados, uno destinado a las habitaciones y el otro al espacio de estar principal.
Se disponen terrazas en cada extremo del pabellón para el estar permitiendo seguir el sol en el transcurso del día.
Pantallas corredizas en el extremo noroeste proporcionan una protección para las diferentes condiciones del viento, privacidad de los vecinos campistas y actúa como paredes para dormir en el exterior.
Fotografo: © Paul McCredie
[unitegallery shoal_bay]


























