El encargo consistió en una casa para un surfista y su familia que rescatara elementos típicos de la arquitectura de la zona de forma contemporánea y crear espacios protegidos del frio viento sur (constante en la zona) y manejo del asolamiento poniente, sin perjudicar la vista hacia Punta de Lobos (surf point) en esta misma dirección.
Materiales predominantes: Fundaciones de hormigón armado revestido en piedra laja, Estructura muros: Madera de pino insigne de la zona. Pisos: madera de Ulmo, hormigón pulido, porcelanatos. Ventanas: termopanel con marcos de PVC. Forros muros exteriores: madera de pino insigne ventilado. Techo revestido en piedra laja sobre doble membrana asfáltica.
Zócalo
Reinterpretamos el elemento “zocalo”, basamento de piedra laja (local) sobre el cual se construyeron la mayor parte de las construcciones en el centro histórico de Pichilemu (1885).
En la casa Zocalo, este elemento construye una plataforma, la cual conforma un espacio exterior para la casa con terrazas protegidas del viento sur principalmente, y areas verdes controladas, limitando el área de riego, debido a la escazes de agua de la zona. El zócalo y muros de la casa ventilan, disminuyendo la humedad interna y tranferencia termica de la casa. La piedra laja fue extraida de una cantera hablitada en el mismo sitio.
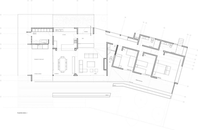
Viento sur y asoliamiento
Con una vista predominante hacia Punta de Lobos, el volumen se emplaza de manera de que la mayor cantidad de recintos miren hacia el mar, pero con un quiebre en éste se busca proteger de los vientos del sur la fachada nor-poniente y sin perder la vista. La disribución de la casa es basicamente: hacia el sur el sector de dormitorios, hermetico, siendo este la parte del volumen que bloquea el viento hacia el sector norte de la casa, donde se encuentra en un gran espacio living, comedor, cocina, que se abren hacia un espacio intermedio donde se encuentra el area de parrillas y terrazas totalmemte protegido del viento y recibiendo el asoliamiento norte.
A traves de un alero a lo largo del volumen, se protege el interior de asoliamiento exesivo, y también estos espacios, construidos en su mayor parte de palillaje de madera de la zona, generan espacios intermedios protegidos del viento sur.
Con el fin de generar continuidad con el zócalo, y trabajar la quinta fachada, el techo también fue revestido con piedra laja.
Fotografías © Sergio Pirrone
[unitegallery Obra_CasaZocalo]



















