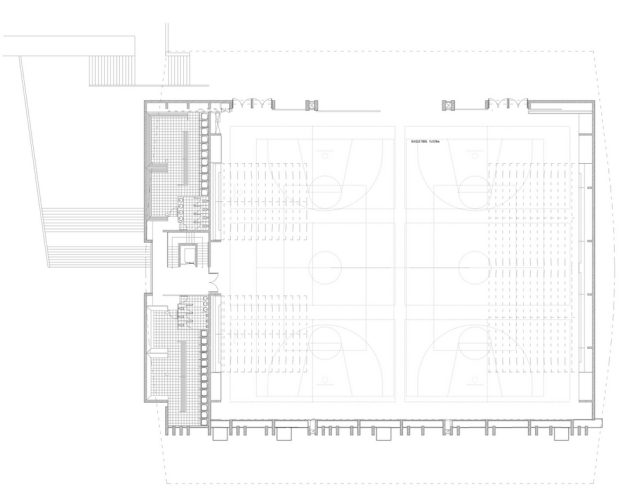
El edificio que albergará el nuevo Gimnasio, Casino y Servicios del Colegio Padre Hurtado y Juanita de Los Andes, se realizará en dos etapas, la primera será entregada en agosto del año en curso, ésta comprende toda la obra gruesa y la implementación del gimnasio cuya coronación es de madera laminada que salva una luz de 36 metros.
Con el fin de lograr un edificio que sea adecuado al entorno natural y a la arquitectura del colegio. Se propuso un edificio compacto que construye el desnivel y se resuelve en forma sencilla, a través de un concepto estructural unitario, entendiendo la estructura como arquitectura.
El esquema estructural del corte resuelve los desafíos planteados en una techumbre de cerchas parabólicas que se apoyan en un sistema de contrafuertes. Estos contrafuertes, al mismo tiempo arriostran y anclan el edificio al terreno en pendiente, solucionan el tema de la orientación poniente, proporcionan el edificio fragmentándolo, y transparentan el interior del mismo.
El edificio proporciona una gran luz para el gimnasio, une los diferentes niveles en que se resuelve el colegio y el entorno natural del mismo, proporciona un nuevo acceso y presencia del colegio hacia la nueva calle San Ramón sur y resuelve una plaza ceremonial y de expansión en una topografía abrupta.
El nivel propuesto para el gimnasio y la plaza permite una relación fluida con el acceso por calle san Ramón sur y los espacios de canchas al oriente.
Un techo de apariencia liviana con grandes vuelos hacia el oriente que permite una marquesina importante para el acceso y relación con la plaza, permitirá su uso como patio cubierto sin interferir con otras actividades. La marquesina al poniente protege el edificio del sol.
Relación con el entorno natural
El sistema de una sucesión de contrafuertes paralelos que resuelven la estructura de soporte de la techumbre crea una fachada profunda que protege al edifico del sol formando un edifico transparente en el sentido del uso y del paisaje.
Un edificio transparente en el sentido oriente poniente permite al gimnasio unirse a la plaza propuesta y el paso natural tanto de las brisas de la cordillera como de las vistas hacia ella y la ciudad, ubicando el edificio en la naturaleza.
Relación con la plaza
El gimnasio se plantea en continuidad con la plaza. La prolongación del techo proporciona una marquesina de seis metros, tanto para el uso del nuevo acceso como para actividades al aire libre protegidas. Un umbral, con puertas correderas a todo el largo, prolonga el límite visual y de uso de la plaza incorporando el gimnasio hasta su límite poniente sobre el paisaje de la ciudad.
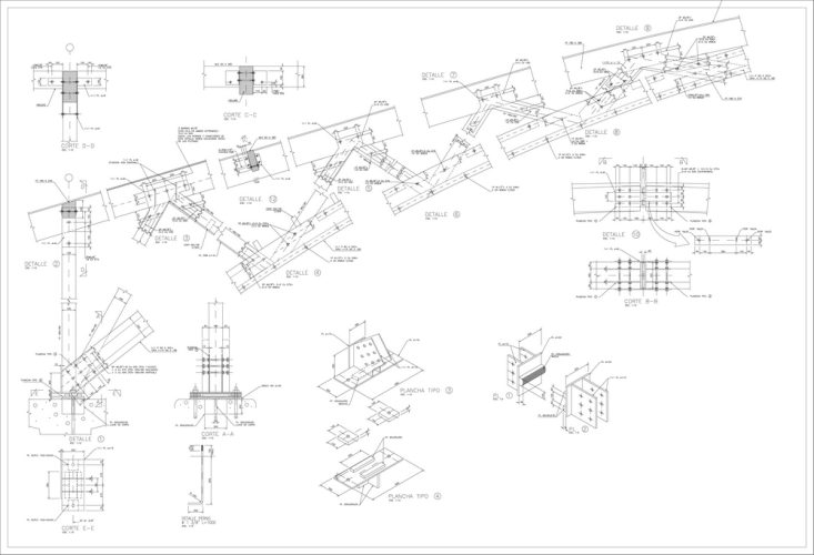
Concepto estructural
Con el fin de salvar con elegancia y economía una luz de 36 x 48 metros necesaria para el gimnasio se propone una techumbre con un sistema de vigas triarticuladas confeccionadas en madera laminada. Las cerchas se han dispuesto paralelas a 464cm entre sí.
El cordón inferior de estas vigas se ha diseñado en forma parabólica. La parábola define una línea de fuerza sin tracciones, que viajan a los apoyos a través de las vigas de madera laminada, permitiendo de esta forma una viga de gran economía. La estructura de la techumbre en marquesinas voladas a partir de las vigas laminadas parabólicas actúa como contrapesos aligerando el peso del centro de la techumbre sobre el envigado.
La techumbre se apoya en una viga perimetral que se ha diseñado como anillo de compresión, con un ancho importante que actúa como umbral del recinto. Un sistema de montantes diagonales asegura el arrostramiento de la techumbre y disminuye la luz de los volados que conforman las marquesinas laterales.
Las cargas se llevan al suelo mediante un sistema de contrafuertes. Estos contrafuertes son más densos e importantes hacia el poniente donde el edificio cobra mayor altura e importancia, y mínimos hacia el oriente, donde el edificio tiene sólo un piso y se desea una mayor transparencia hacia la plaza.
Los contrafuertes al poniente hacen ostensible la solución estructural del edificio unificando los tres pisos de altura, sirven de parasoles, encuadran el paisaje desde el interior, otorgándole a esa fachada una gran presencia y profundidad.
[unitegallery Gimnasio_PadreHurtado]























