En nuestra sociedad habitualmente percibimos la arquitectura como un lujo, entendiendo lujo como algo valioso y al mismo tiempo escaso. Nosotros estamos de acuerdo con el primer componente de esta definición. Con respecto al segundo punto como arquitectos no hemos sido lo suficientemente persistentes para construir un entorno de mejor calidad, dentro y fuera de los centros urbanos. Ahora si definimos lujo como Bruno Munari lo hace, nos damos cuenta que en general la producción arquitectónica de alta calidad esta generalmente asociada al (mal) uso de costosos materiales, que producen una brecha de desigualdad en la medida en que los beneficios de un buen diseño sólo pueden ser aprovechados por aquellos que pueden permitírselo.
Del mismo modo y en orden de traer el (buen) diseño más cerca de un gran porcentaje de personas, hemos estado trabajando algún tiempo en la manera de mejorar la relación entre diseño de calidad y costo. Para lograr esto, partimos de la hipótesis que la construcción racional debiera definir leyes de diseño, es por esto que hemos optado por diseñar proyectos que optimicen la condición material de sistemas constructivos de bajo costo y tecnología simple. Aprovechar las propiedades dimensionales de los materiales permite crear ventajas a fin de reducir los tiempos y costos involucrados en una obra de arquitectura.
En el caso del Hostal Ritoque, nuestro concepto para un buen diseño a bajo costo coincide exactamente con lo deseos del cliente y su presupuesto. Como ocurre continuamente en Chile, los deseos eran elevados y el presupuesto, acotado. Para las personas no familiarizadas al rubro de la construcción y sus costos, las expectativas respecto a la inversión de sus vidas son altas, esperando que la obra a realizar cumpla con todo lo que sus mentes puedan imaginar.
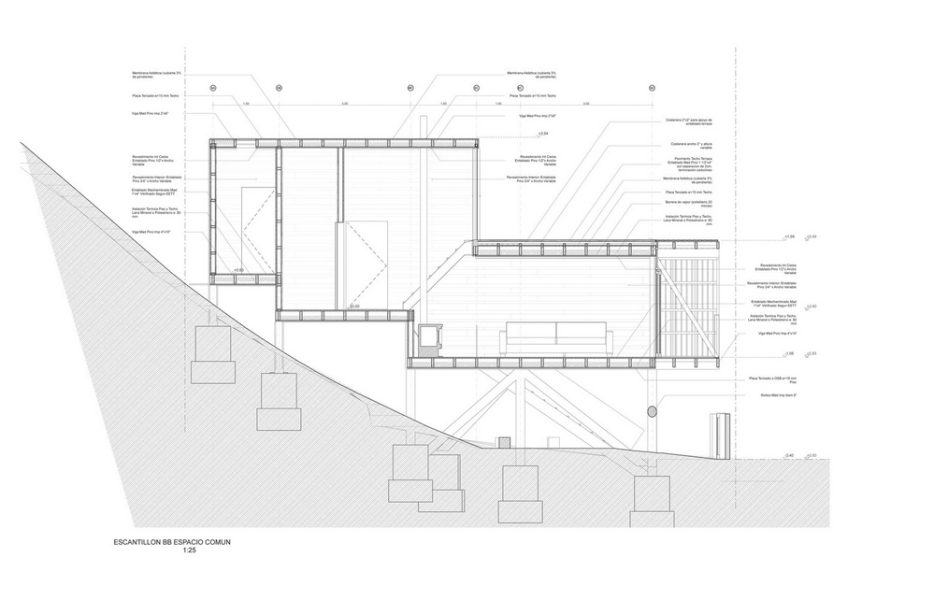
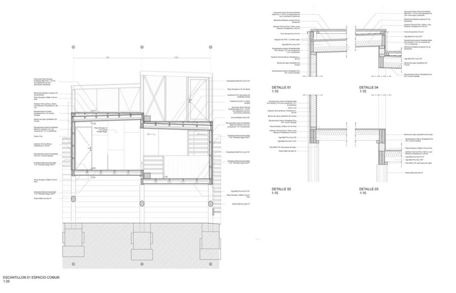
Para reducir costos, como el proyecto está ubicado en una zona rural, se comenzó eligiendo mano de obra y tecnologías locales. En otras palabras, nos comunicamos con el “comerciante” conocedor de la tipología constructiva en el área -arquitectura de pino aserrado simple- y creamos un catálogo de técnicas de construcción basadas en las soluciones locales más comunes. Esta decisión nos permitió reducir costos de transporte y los márgenes de ganancias en la construcción.
Cuando todos los participantes de la obra fueron expertos en el sistema constructivo, el segundo aspecto clave fue optimizar las dimensiones del largo más común de madera. Esta medida es definida en base a la anchura y la forma de los volúmenes que componen el proyecto. La decisión en sí misma no produjo ahorros materiales pero entregó un valor adicional al dotar a todos los espacios de una dimensión mayor que la que los otros sistemas constructivos ofrecían (2.4 mts).
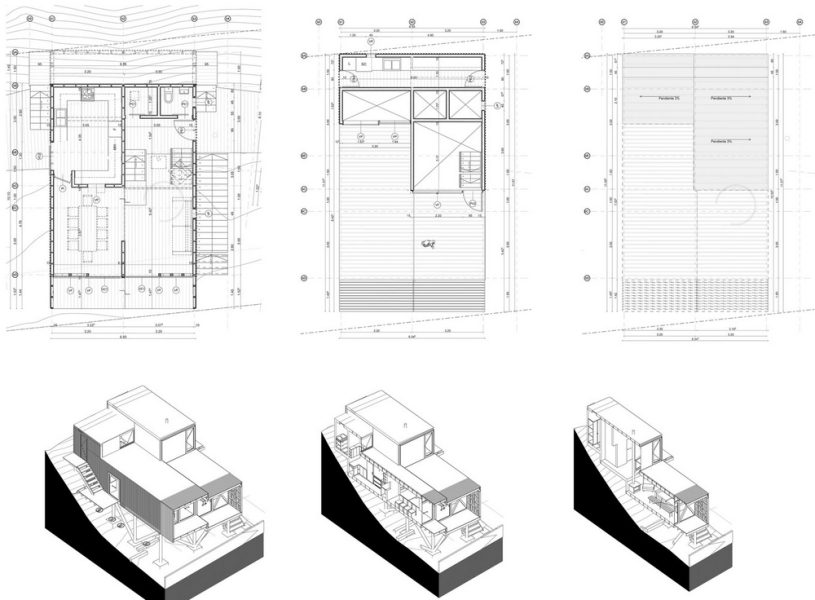
El Hostal Ritoque está ubicado en el extremo norte hacia el final de la playa del mismo nombre, donde en los años 70´ fue desarrollada la Ciudad Abierta de la Escuela de Arquitectura de Valparaíso. La planta está dividida en 5 volúmenes independientes: 3 para departamentos de 2 pisos, uno para zonas de servicio y espacios comunes y el último para el dueño del hostal. Cada uno está distribuido en planta de modo de lograr independencia del conjunto y la mejor orientación posible hacia el paisaje.
Fotografía: Alejandro Soffia – Pablo Casals-Aguirre
[unitegallery Hostal_ritoque]


























