La Casa Uruguaya se enmarca en la competencia internacional Solar Decathlon 2015, de viviendas diseñadas y construidas por grupos de estudiantes, egresados y docentes de universidades latinoamericanas y europeas, ´para promover tecnologías innovadoras en viviendas sociales y con huella de carbono mínima.
Idea fuerza
Generar una “caja” con una envolvente o segunda piel, que permita la aislación térmica de la vivienda, generando una vivienda energéticamente eficiente empleando estrategias pasivas (orientación solar, corrientes de aire, materiales) y estrategias activas.
Descripción
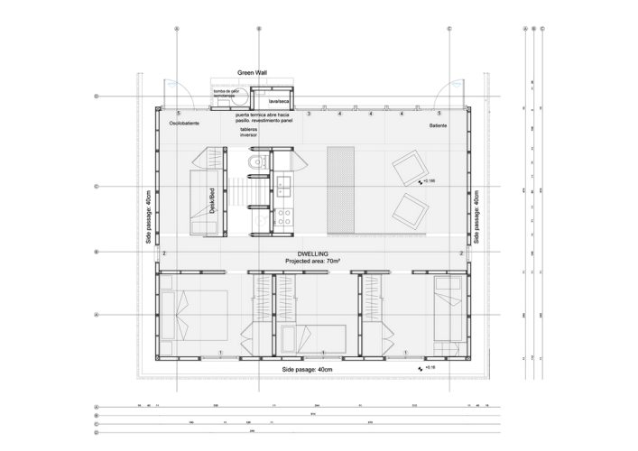
La casa se organiza alrededor de un núcleo húmedo de 12 m2 (que concentra las tuberías) que contiene la cocina y el baño. Cuenta con tres dormitorios, una habitación polivalente que puede ser utilizada como escritorio o dormitorio mediante un sistema de mobiliario “Hiddenbed”, una sala de estar y comedor. La sala de estar y el comedor están integrados en el espacio de la cocina para generar la sensación de un espacio más amplio. La casa cuenta con paneles solares fotovoltaicos y un sistema de domótica.
Toda la casa está cubierta por una protección solar vertical, compuesta por una malla de madera que cubre tres fachadas de la casa: este, oeste y sur. En la última existen parasoles horizontales móviles, para permitir y bloquear la entrada de la luz natural. Esta malla está separada 40 centímetros de la casa y actúa como fachada ventilada, protegiendo la casa del sol y mejorando su desempeño térmico. La casa está revestida por un sobretecho con amplios aleros que además de brindar protección contra el sol, genera un espacio (con ventiletes) para aislación térmica y ventilación.
Uso de madera en estructura y revestimientos
La estructura de la casa fue realizada con madera y tableros contrachapados de Eucalyptus grandis de producción uruguaya. La estructura de paredes consiste en pie derechos (2 x 4) separados c/ 40 cm y soleras (4 x 2), revestidos por sus cara interna con dos tableros contrachapados de 18 y 12 mm y la exterior con un tablero de 18 mm. La estructura de pisos y cerramiento horizontal, consiste en tirantes de madera (2 x 4) separados c/40 cm, revestidos en sus dos caras con tablerlos contrachapados de 18 mm. El pavimiento es de tableros de madera laminada encolada de Eucalyptus grandis de 1” de espesor.
La estructura del sobretecho, consiste en una serie de cerchas, separadas cada 1,20 m sobre las cuales apoyan una serie de unidades prefabricadas en forma de “u”, compuestas por tirantes (2 x 4) y revestidos en su cara inferior con tableros contachapado de 18 mm de espesor.
Los revestimientos interiores, combinan el uso de la madera con su color natural en pisos y paredes, y el uso de tableros contrachapados pintados de color blanco.
[unitegallery Obra_CasaUruguaya]












