Empresa / oficina: Mobil Arquitectos
Arquitecto a cargo: Director: Patricio Browne - Jefe de Proyecto: Pablo Moreira
Ingeniero Estructural: RG Ingenieros
Cliente: Inmobiliaria 12 Cachagua
Ubicación: Cachagua, Comuna de Zapallar
Ingeniero: RG Ingenieros
País: Chile
Superficie construida: field_60a2165eeedae
Año de construcción: 2017
Tipo de construcción: Santiago
Fotógrafo: Nico Saieh
DOCUMENTOS ADJUNTOS
Descripción del proyecto
El proyecto ubicado en el pueblo costero de Cachagua, se compone de 12 casas integradas en el barrio y cercanas a la playa. Se desarrolla hacia la pendiente para reducir su impacto en la calle. Se configura en base a dos volúmenes superpuestos y traslapados que se adaptan a la topografía y brindan vistas hacia los cerros, cordillera y mar. En los quiebres, se crean patios interiores con luz y paisaje. A nivel calle cuenta con un zócalo habitable, sobre el cual vuelan los volúmenes del segundo piso, con una doble piel que destaca los volados. Se utiliza principalmente madera laminada, aportando una atmósfera tranquila en interiores y expresión neutra hacia el exterior. Cada casa cuenta con dos niveles y se conectan por escaleras que atraviesan los patios interiores. El desafío fue desarrollar el proyecto fuera del formato tradicional de casas ¨playeras¨, buscando minimizar el impacto en el entorno y maximizar el número de viviendas posibles, sin alterar la armonía del lugar. Así, se diseñó un volumen que no interrumpiera la escala del vecindario y lograr una arquitectura armónica con el entorno natural, brindando un espacio acogedor para los residentes
Innovación en el uso de la madera
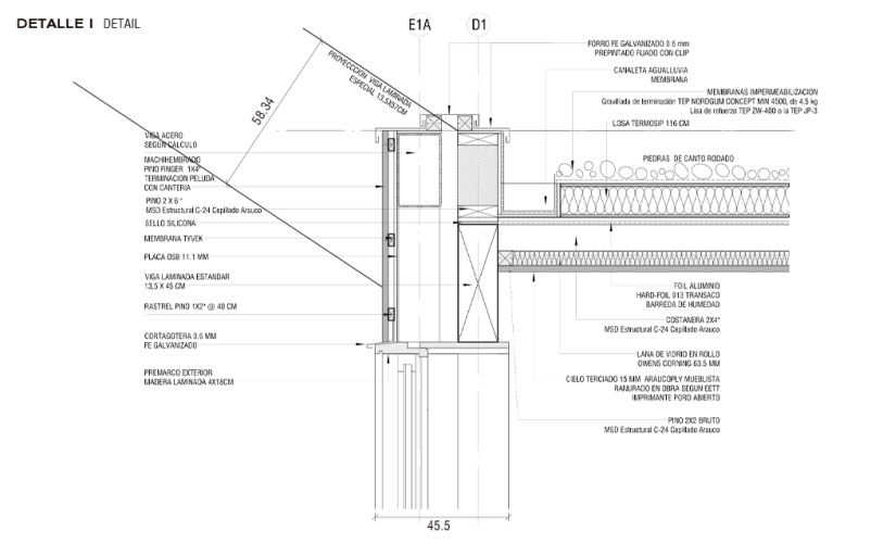
La innovación y relevancia de la madera en la propuesta arquitectónica se evidencia en su configuración estructural híbrida en cuatro niveles de altura. El primer nivel es de contención en hormigón armado y sirven como base para la estructura de madera, conectada a ellos mediante pernos y losa de hormigón, los tres siguientes utilizan pilares y vigas laminadas mediante sistema mixto entre madera laminada (estructura a la vista) y madera línea MSD Estructural C-24 Cepillado de Arauco (Muros con revestimiento). El último nivel considera con una cubierta transitable. La estructura de madera laminada es puntualmente reforzada con riostras metálicas en el área del living para obtener mayores luces. Se completa la propuesta utilizando listones de madera laminada machihembrados de 1" x 4", con textura "peluda o serreada" para el revestimiento exterior, esta terminación permite que la pintura de protección penetre mejor en la madera y asegure una protección adecuada fijándose sobre rastreles que permite una capa mínima de ventilación.
Desempeño Técnico
Respecto a los aspectos técnicos, en techo, se usaron vigas laminadas con pendiente, costaneras de MSD Estructural C-24 y panel SIP para resistencia y aislamiento térmico. El proyecto de maderas laminadas fue trabajado con Lamitec. En muros divisorios y perimetrales, se utilizaron montantes y pies derechos en MSD Estructural C-24 cepillado, reforzados con OSB en ambas caras. Para los entrepisos, se emplearon vigas laminadas, costaneras en MSD Estructural C-24 y tablero de cielo Terciado Estructural ARAUCOPLY ranurado. En losas mixtas, incluyendo terrazas, se consideró tablero de piso de terciado estructural sobre envigados de madera, con tornillos VB Conector Madera-Hormigón. Para el revestimiento de la fachada, se aplicó un sistema compuesto por OSB, membrana hidrófuga, rastreles de pino impregnado y revestimiento de madera machihembrado Pino-Finger terminación "peluda o serreada", con imprimante a poro abierto. Se aplicó imprimante CETOL HLS para proteger las maderas exteriores de los efectos del exterior y decoloración por rayos UV, y en las estructuras y huellas de las escaleras barniz poliuretano.
Propuesta conceptual y/o impacto
La propuesta conceptual destaca el uso de un sistema híbrido estructural para construir altura. Esta elección permite avanzar hacia el desarrollo de proyectos de madera en altura y para aprovechar el carácter espacial que ella aporta, flexibilizando su uso ante las restricciones de la norma sísmica propia de nuestro país. La elección de la madera como material principal tiene como objetivo integrarse de manera respetuosa al entorno y enfrentar el desafío del encargo considerando la escala del lugar. Busca contribuir a lógicas de construcción de menor impacto ambiental, reservando el uso del hormigón como base de contención del terreno y el soporte para el desarrollo en altura y quiebres del proyecto. Asimismo, utilizar la madera como revestimiento exterior se alinea con el objetivo de aportar un carácter amable y noble al entorno del contexto. que busca desarrollar una tipología nueva, fuera del formato tradicional minimizando su impacto sin alterar la armonía del lugar.











¡Comparte nuestro contenido!