Anteproyecto de Galpones Estructurados en Madera Encolada

Código de registro: ING3274

Universidad: Pontificia Universidad Católica de Chile

Sede:  Campus San Joaquín

Equipo: Cristóbal Reyes Gaete

Profesores guía:

Pablo Guindos

DOCUMENTOS ADJUNTOS

© Derechos reservados por sus autores intelectuales.

Memoria del proyecto

Presentación del proyecto

Lámina N°2 del proyecto

Lámina N°3 del proyecto

Lámina N°4 del proyecto

Lámina N°5 del proyecto

Lámina N°6 del proyecto

Anteproyecto de Galpones Estructurados en Madera Encolada

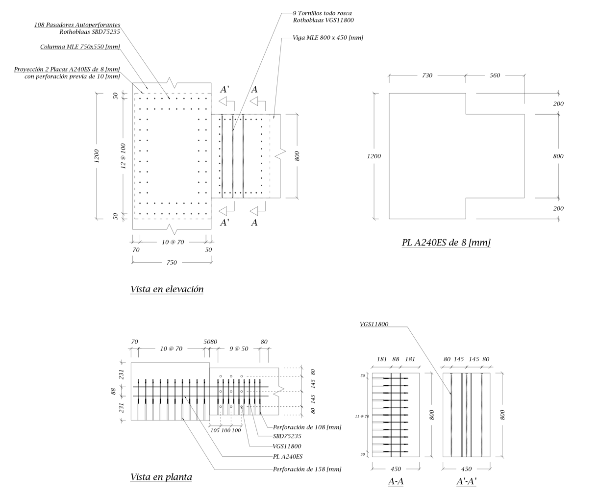
Este trabajo de título se enfoca en el desarrollo de un anteproyecto en madera estructural encolada que, junto con los objetivos del Centro UC de Innovación en Madera – CENAMAD, pretende intensificar el conocimiento en el desarrollo de estructuras de madera encolada sismorresistentes que sean de interés industrial-comercial, explorar alcances de alternativas de soluciones constructivas e indagar en el estado del arte de conexiones dúctiles, con el objetivo de identificar ventajas que habiliten a la madera como una estructuración competitiva frente a alternativas que ya existen en el mercado nacional. Habiendo definido objetivos, alcances y usos destinados, se realizó un trabajo colaborativo junto al ingeniero Francisco Eckhardt y la arquitecta Sol Villanustre -profesionales de CIM UC - para dar forma un diseño arquitectónico que impregna al proyecto de un carácter icónico. Posteriormente, se realizó la pre-estructuración del edificio, donde se determinó las distancias máximas que podrían desarrollar los marcos, mediante un estudio de luces. Para esto, se estudiaron distintos diseños de losas de CLT que resguarden un espesor comparable al de losas de hormigón armado, para mantener competitividad. El estudio compara la influencia del grado de calidad de la madera - A o B - y su implicancia en el módulo de elasticidad (𝐸𝑓), módulo de corte (𝐺) y en la resistencia a la flexo-tracción (𝐹𝑓𝑡,𝑑𝑖𝑠). Se concluye que una losa de panel simple es viable para luces de 3 a 5,5 metros, mientras que las losas nervadas pueden llegar hasta los 10 metros, para el grado de calidad B y el estado de carga definido. El aumento en la calidad de la madera no tiene un impacto significativo en los resultados. Luego, para el análisis estructural, se desarrolla una modelación computacional 2D incluyendo cargas de uso y sísmicas. Para el diseño sísmico, se realiza un análisis modal espectral según la NCh433 y el DS61. Se considera un caso desfavorable según zona sísmica y suelo, de modo que el diseño cubra los requerimientos para gran parte del país. En el modelo computacional se verifica el nivel de drift y se extraen las fuerzas para diseñar las vigas y columnas que componen el marco típico de la estructura. Finalmente, se desarrolla la ingeniería de detalle. Para definir qué tipo de conexión diseñar, se realizó una revisión del estado del arte de conexiones dúctiles de marcos de momento, basada en el artículo de Rebouças et al. (2022) “Ductile Moment-Resisting Timber Connections: A Review”. En base a ensayos experimentales, la revisión de literatura demuestra la gran relevancia de las conexiones en la ductilidad, resistencia y desplazamientos de la totalidad de los marcos de momento en madera. En general, cuando las conexiones logran ductilidad, aumentan la resistencia y disminuyen el desplazamiento lateral. Adicionalmente, diversos estudios demuestran que las uniones tradicionales con pernos y placas de acero presentan un comportamiento frágil y de baja resistencia. Frente a esta deficiencia, se estudian y diseñan dos nuevos innovadores tipos de conexión. La conexión Self Drilling Dowels, similar a la tradicional perno-placa, reemplaza pernos por pasadores autoperforantes (SDD), capaces de perforar acero y madera. De esta forma, se evitan problemas con la rigidez inicial por sobre-perforación en agujeros y se induce un modo de falla dúctil por la esbeltez del conector. Adicionalmente, para evitar una falla frágil por splitting, se refuerza con tornillos autoperforantes (STS) perpendiculares a la fibra. La segunda conexión, Glued-in Rods, consiste en encolar barras roscadas (GIR) en los elementos de madera e interconectarlas a un perfil de acero H de apoyo mediante tuercas de apriete. La estructuración de esta conexión permite diseñar induciendo un modo de falla dúctil en el alma del perfil de acero. Por otra parte, gracias a su alta prefabricación y fácil montaje, la conexión puede lograr un alto grado de industrialización. Como principales resultados, se logra determinar espesores óptimos para distintas luces de losas de CLT, pudiendo alcanzar hasta 10 metros de longitud libre, con una altura de entrepiso competitiva; y diseñar uniones de momento sismorresistentes de alta ductilidad y resistencia, capaces de alcanzar hasta 255 [kN-m] asegurando modos de falla dúctiles. Este anteproyecto busca destacar a la madera como un material de construcción competitivo para infraestructuras de grandes luces. Gracias a la adaptabilidad del edificio a distintos usos y a la alta prefabricación de sus elementos estructurales y conexiones, representa una estructura con gran potencial de industrialización.

¡Comparte nuestro contenido!