Biblioteca Aldunate

Código de registro: ARQ386

Universidad: Universidad de Buenos Aires

Equipo: Mairon Saavedra, Laura Carpman

Profesores guía:

Omar van Kerckhoven

DOCUMENTOS ADJUNTOS

© Derechos reservados por sus autores intelectuales.

Presentación del proyecto

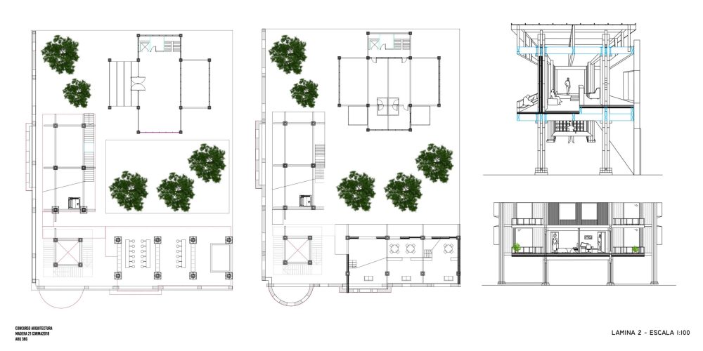
En la esquina de Alameda con Ejercito se ubica el palacio aldunate. El edificio es actualmente nada más que una cáscara vacía. Sin embargo, mediate una intervención arquitectonica en madera, es posible revalorizarlo y convertirlo en unpunto de encuentro para estudiantes y usuarios del barrio.

¡Comparte nuestro contenido!