Innovación en el uso de la madera
Tanto la estructura como los revestimientos interiores y exteriores del proyecto, se realizaron con distintos tipos de madera, tomando variables técnicas y estéticas para cada uso aplicado, transformándose en el material más relevante de la propuesta.
Todo el revestimiento exterior del proyecto se realizó con durmientes de roble reciclado. Las cabañas están expuestas al mar en una primera línea, sufriendo una fuerte corrosión, por lo que el durmiente es tratado con un aceite derivado del petróleo que le entrega estabilidad y resistencia frente a estas condiciones extremas.
Para aminorar el peso de este revestimiento en las fachadas y la cubierta, se decidió cortarlo en láminas de 5cm de espesor, montadas sobre una estructura secundaria, entregando una imagen rústica que permite mimetizar el proyecto en el paisaje.
Desempeño técnico
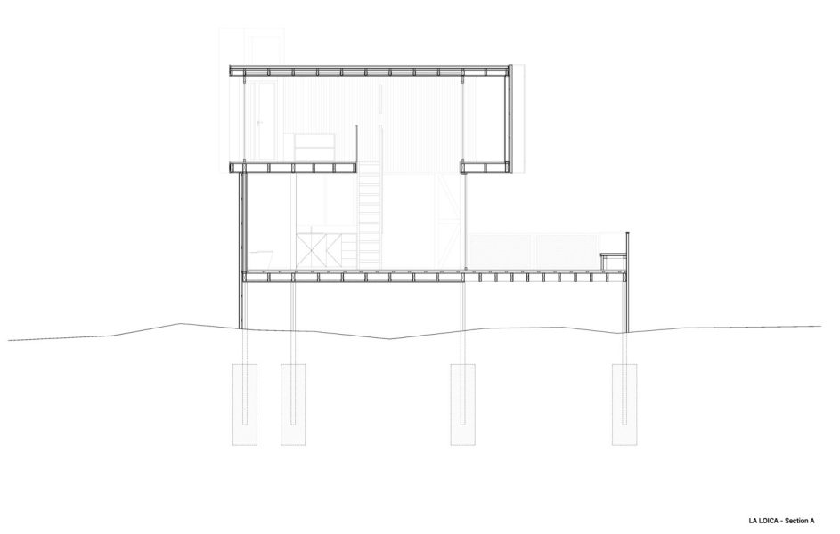
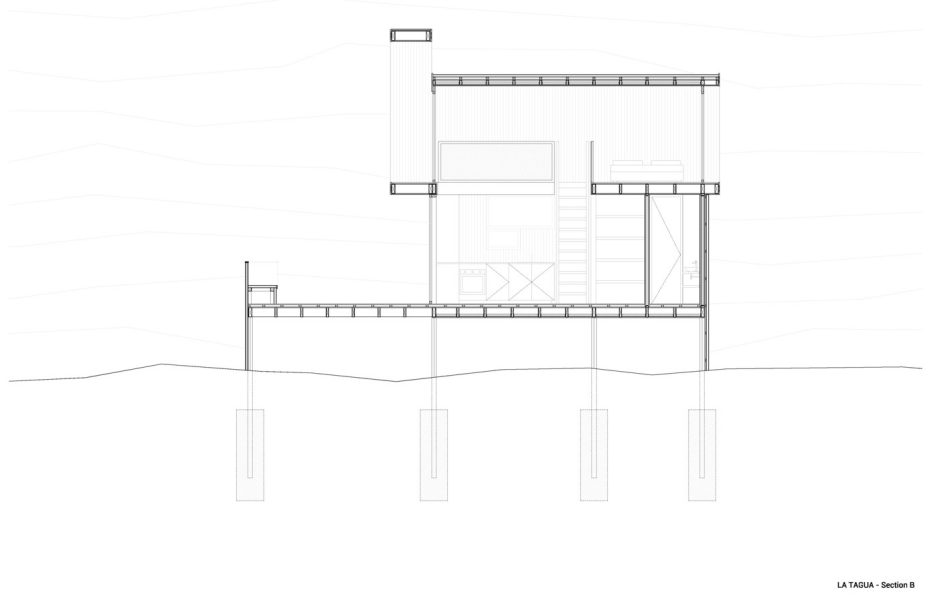
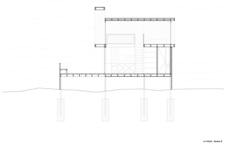
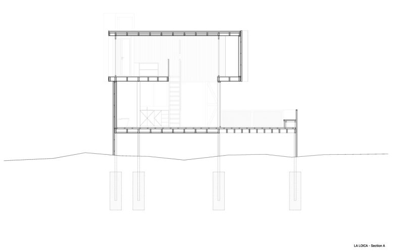
La estructura principal de las cabañas son seis pollos de hormigón que se insertan en el cerro, dentro de los cuales se fijan seis pilares compuestos, los que son de pino impregnado, seco en cámara (3’’x8’’), los cuales forman una mesa principal que soporta todo el resto de la estructura.
Para el interior del espacio habitable, se utilizó una tablilla de madera de pino de 1/2” x 3”, aplicando una capa de aguada blanca para aclarar la madera sin perder su veta.
Los durmientes ya mencionados fueron el material que se eligió para revestir el proyecto, por ser inerte, estable y resistente, que no requiere la aplicación de productos adicionales para un buen desempeño y que no necesita mantenciones en el largo plazo.
Propuesta conceptual y/o impacto
Creemos que en este proyecto logramos incorporar un nuevo uso para el durmiente, logrando relevar sus propiedades, modificar su aplicación y cambiar su formato, para lograr un beneficio técnico y estético, siempre de la mano de una reutilización de la madera a través del reciclaje, proporcionando un impacto positivo en el medio ambiente.
Utilizamos madera principalmente debido a su buen comportamiento frente a la corrosión del mar, también por ser un material de la zona, económico, fácil de transportar, de trabajar y de modificar durante el transcurso de la obra.
Descripción
El proyecto nace como una segunda vivienda costera. Estas dos cabañas para dos personas se ubican en Matanzas, Navidad, en la VI Región de Chile, a 2 horas y 30 minutos de Santiago. Se emplazan a 60/80mts por sobre el nivel del mar en la ladera del cerro Lagunilla de Matanzas, frente a la» Lobera», un gran macizo rocoso en el mar, donde habitan lobos marinos y otras especies autóctonas.
Matanzas se ha transformado en uno de los principales polos de atracción mundial para deportes como Kitesurf y Windsurf, gracias a sus excelentes condiciones de oleaje y viento. Estos fueron sin duda factores relevantes en el desarrollo de la propuesta.
El proceso de diseño se planteó como una oportunidad de experimentación, buscando una propuesta que logre dominarla pendiente y fundir la arquitectura con la naturaleza.
Las cabañas “La Loica” y “La Tagua”, bautizadas con nombres de aves chilenas, se posan sobre la quebrada con una estructura de pilares de madera que permiten consolidar una plataforma principal, sobre la cual se dispone el programa.
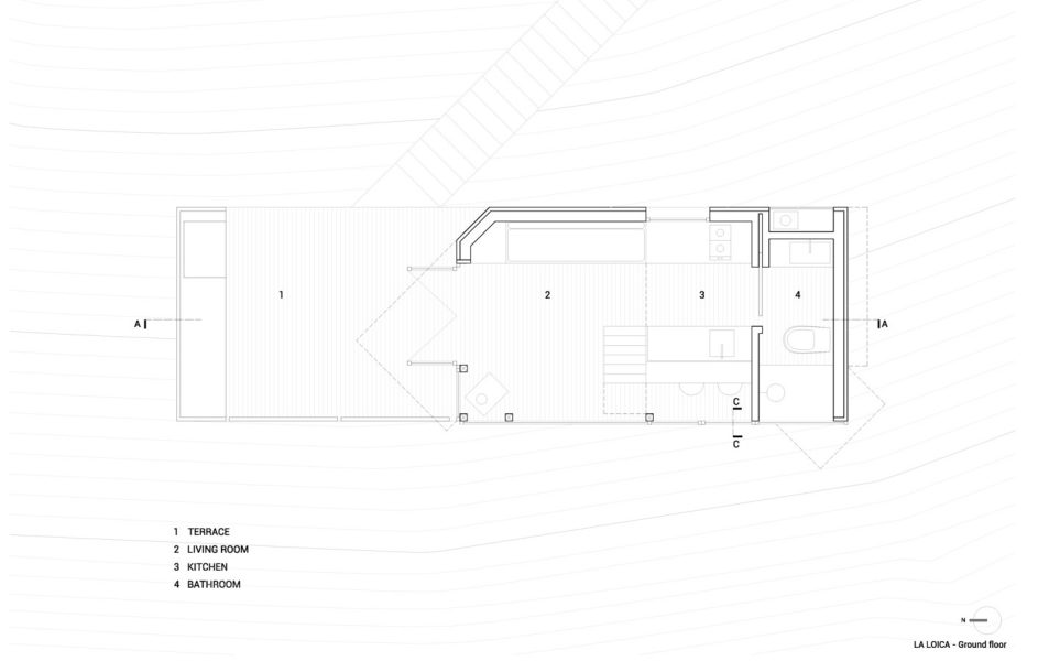
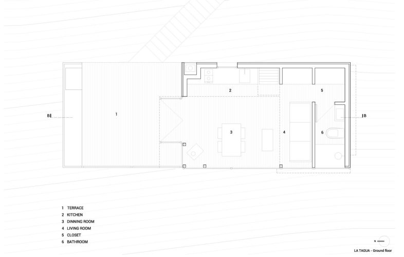
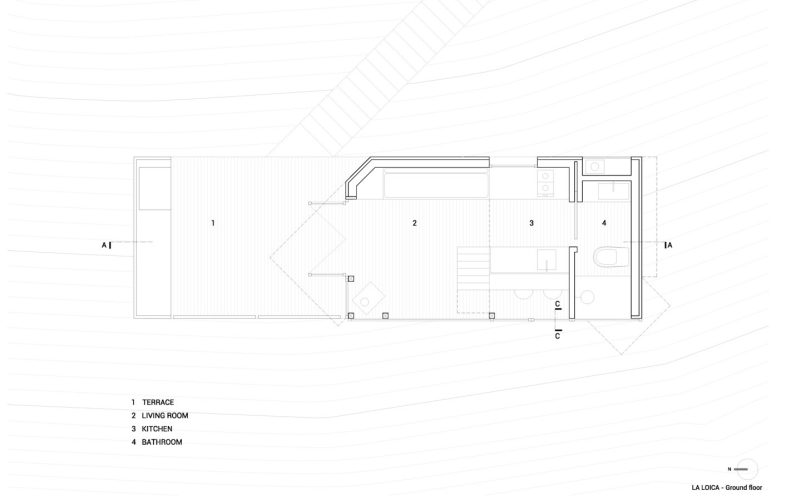
Cada cabaña se resuelve en pocos metros cuadrados, entregando un total de 20m2 construidos interiores a “La Loica” y 25m2 interiores para “La Tagua”.
Un gran mono-espacio tipo Loft, conecta visual y espacialmente todos los recintos interiores. En el nivel de acceso se dispone el estar- comedor, cocina y baño –desarrollado con un mobiliario que se incorpora en la arquitectura, permitiendo optimizar el recinto. En su fachada poniente se montan grandes ventanales, realzando el vértigo de estar suspendiendo sobre el mar, dominando el horizonte.
En ambas cabañas, el dormitorio principal se ubica en el nivel superior, al que se accede por una escalera vertical tipo barco, conectado espacialmente con el resto del programa a través de una doble altura. Este recinto busca enmarcar y dirigir las vistas, apuntando y mostrando hacia el sur el gran morro arbolado y mirando hacia el norte la gran roca/Lobera en el mar.
Las puertas de acceso de cada cabaña se abren de par en par hacia las terrazas dispuestas en la cara norte, con el objeto de conectar el interior y exterior, y lograr una extensión e interacción de los programas. Esto permite que el edificio funcione como protección del fuerte viento que sopla desde el sur poniente, consolidando un gran mirador exterior.
Los edificios están construidos completamente en madera, con una estructura principal de pino impregnado, secado en cámara, lo que mejora su desempeño en el largo plazo. Para los revestimientos interiores se propuso tablilla de madera de pino de ½”x 3”, y el revestimiento exterior se trabajó con una tabla de durmiente de roble reciclado. Este material inerte es tratado con un aceite derivado del petróleo, lo que proporciona estabilidad y resistencia frente a la corrosión marina, junto con entregar una imagen rústica que se funde con el paisaje.
[unitegallery Loica_Tagua]












