Las Cabañas Morerava en Isla de Pascua surgen cuando, en 2009 se nos presenta una oportunidad para realizar un complejo turístico en Isla de Pascua. Analizando la oferta nos dimos cuenta en Isla de Pascua se responde a la demanda turística de variadas formas, desde hoteles de lujo hasta arriendo de casas particulares y camping, pero había un nicho que no estaba cubierto: Cabañas familiares, donde la oferta no cumplía con el estándar esperado por muchos visitantes.
Cuando comenzamos a pensar en el diseño de las cabañas nos dimos cuenta que el desafío de proyectar algo en Isla de Pascua era especial y que debía responder al contexto único de la Isla.
Isla de Pascua o Rapa Nui es un ecosistema muy frágil, en este sentido el objetivo fue diseñar cabañas eficientes en todos los aspectos, en el uso de recursos constructivos, en su operación y en el uso de energía, entregando además un agradable descanso a los visitantes y que resultaran poco invasivas con el medio ambiente.
Nos pusimos como restricción usar la menor cantidad posible de recursos no renovables, propios de la isla. Todo fue hecho en el continente y enviado por barco. Piezas prefabricadas y otras precortadas son parte de este modulo, cuyo diseño optimiza los materiales existentes en el mercado. A modo de ejemplo, la modulación entre pilares es de 120cm que corresponde a la mitad del largo de una placa, lo que se traduce en menos pérdida de material.
Dado que la temperatura en Isla de Pascua siempre es cercana a la zona de confort (clima sub tropical), no fue necesario agregar aislación térmica, lo que permitió dejar lo que tradicionalmente sería la estructura interior de los paneles, a la vista. Esto representa un ahorro en materiales y mano de obra que se trabajó a través del diseño para lograr una estética acorde a lo que se quería transmitir en cuanto a diseño.
Para aislar térmicamente la cubierta se dejó un espacio libre entre las placas del cielo y la cubierta de zinc, permitiendo que el aire fluya entre medio, permitiendo así una aislación natural.
Las cabañas se posan sobre el terreno a través de pilotes, con el fin de lograr la mínima intervención en el terreno. Esto permite conservar las características naturales de absorción del terreno y la conservación de las especies de plantas y arbustos existentes incorporándolos dentro del diseño y se elimina el problema de humedad al interior de la vivienda.
En el diseño se tuvo especial cuidado en el asoleamiento y ventilación cruzada, a través de ventanas corridas ubicadas a ambos lados de las cabañas, de manera de evitar el uso de sistemas mecánicos para lograr un ambiente de confort, tanto térmico como lumínico. La ubicación de estas ventanas permite que 2 cabañas estando cercanas no se miren entre sí, entregando además la privacidad necesaria.
Las cubiertas poseen un sistema de recolección de aguas lluvias, la que posteriormente es almacenada y tratada para el uso doméstico y de riego. Sólo cuando esta no es suficiente, se utiliza agua de la red y de esta manera se evita el sobre consumo de este elemento escaso en Isla de Pascua.
El agua caliente se obtiene directamente del sol gracias a paneles solares ubicados sobre cada cabaña, los que calientan el agua evitando así el uso de combustibles y electricidad, que en la isla se obtienen del petróleo que hay que llevar en barco.
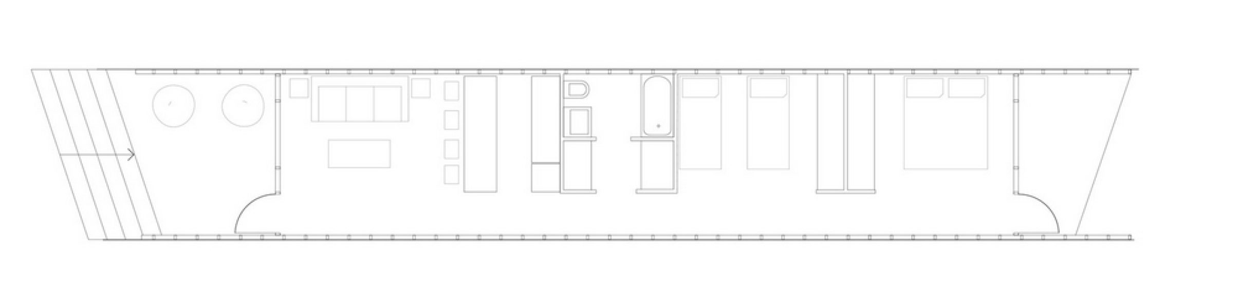
Cada cabaña posee 60m2 interiores más 17m2 de terrazas cubiertas y está equipada para 6 pasajeros.
Fotografías: AATA Arquitectos
[unitegallery Cabanas_morerava]























