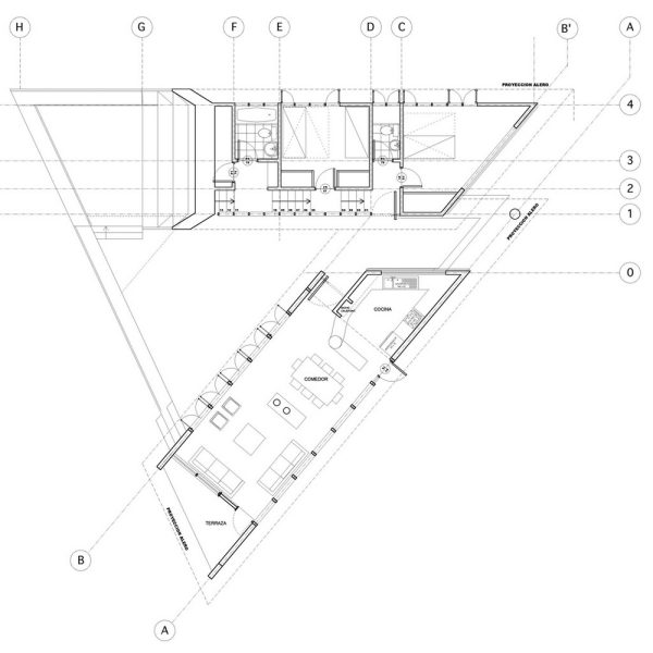
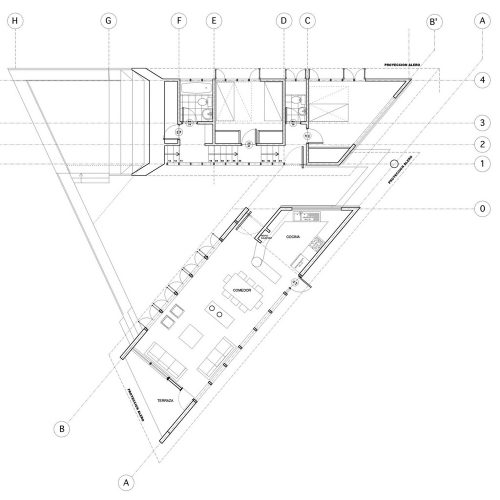
Ubicada en lo alto de un cerro en medio de abruptas pendientes la casa se emplaza valorando el espacio exterior. La terraza con vista al mar pasa a ser el espacio principal de la casa, ubicándose en su centro, dejando los demás recintos en torno a ella. La planta de forma triangular distribuye el programa en dos volumenes.
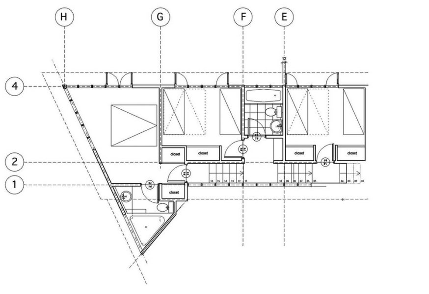
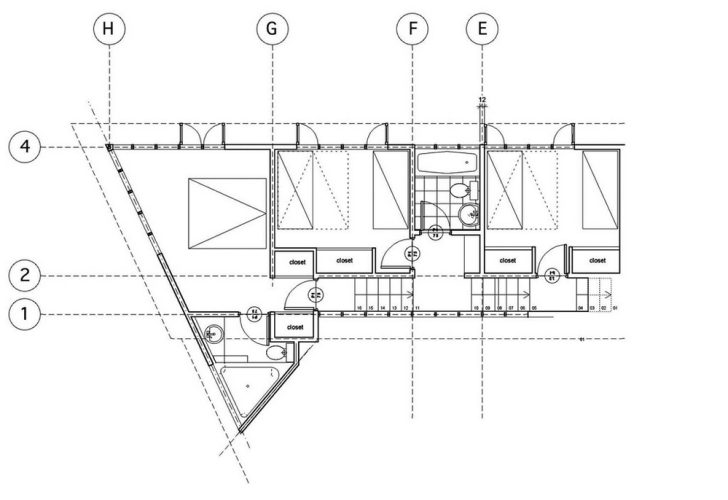
El primer volumen sigue la cota del cerro, en el mismo plano de la terraza, y acoge los programas más públicos de la casa: el living, el comedor y la cocina. El segundo volumen se emplaza en contra de la pendiente, bajando junto a ella en cuatro diferentes niveles, en los cuales se ubican los dormitorios. De esta manera se logra un centro protegido del viento, logrando que el unico lado abierto del triángulo concentre las vistas hacia el mar.
En relación a la orientación de los volúmenes, se consideraron las horas de uso de los recintos; mientras el volumen de los dormitorios se orienta en dirección nororiente de modo de aprovechar el sol de la mañanas, el volumen de los recintos de uso más público se orienta hacia el norte.
El juego de niveles que tiene el proyecto genera una gran dinámica en las cubiertas, estando presentes en casi todas las instancias, naciendo del nivel de la terraza y subiendo en torno a ella hasta superar los 4mt de altura, lo cual lleva a tratar su superficie como un tema importante.
Se optó por una cubierta vegetal dispuesta en un sustrato compuesto de arena, ripio de canto rodado y algo de materia vegetal. De esta forma, Las docas, especie presente en toda la zona costera central chilena, atenúan la radiación directa sobre el volumen de los dormitories, integrando la casa al paisaje, exaltando su vocación topográfica.
Fotografía: Felipe Durán Palma
[unitegallery Casa_altavista]





























