El encargo consiste en desarrollar una vivienda de bajo costo, con un programa básico y con los recintos principales abiertos hacia el exterior.
Como posteriormente se desea construir una segunda vivienda en el frente del sitio, el proyecto se emplaza al costado sur del terreno. Esto, para aprovechar el soleamiento y conformar el patio principal del futuro conjunto.
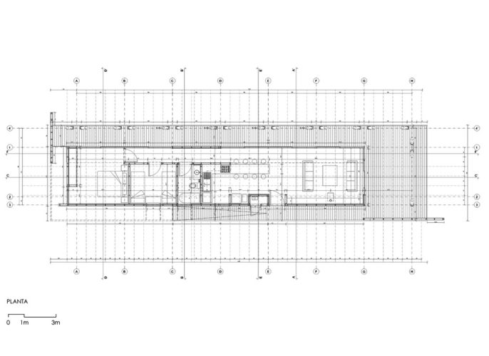
La propuesta considera un volumen regular muy simple, con un módulo constructivo adecuado a su material principal: pino impregnado. Hacia el norte se plantea un corredor como estrategia tradicional para controlar la radiación, generando una fachada permeable que vincula adecuadamente el interior con el jardín.
[unitegallery casa_biehl]














