El encargo consistió en el diseño de una casa para vacaciones en la ribera oriente del Lago Caburgua. El uso principal de esta casa será durante el verano y eventuales usos durante el resto del año. El programa arquitectónico considera 4 habitaciones, 3 baños, más un espacio integrado entre estar, cocina y comedor. Este espacio es esencial en el uso, dejando a las habitaciones un carácter más funcional.
La ubicación elegida es la parte superior de una loma, con fuertes pendientes hacia dos de sus costados. La razón de la elección se basó en la búsqueda de vistas hacia el lago y la presencia de un espacio libre de grandes árboles nativos.
La propuesta consistió en crear un volumen unitario y despegado del suelo, orientado de oriente a poniente (para buscar una fachada norte más larga). Interiormente se buscó tener un gran volumen de aire integrando los distintos espacios, que se fueron configurando por medios de niveles. Se privilegiaron las vistas hacia el lago y el bosque.
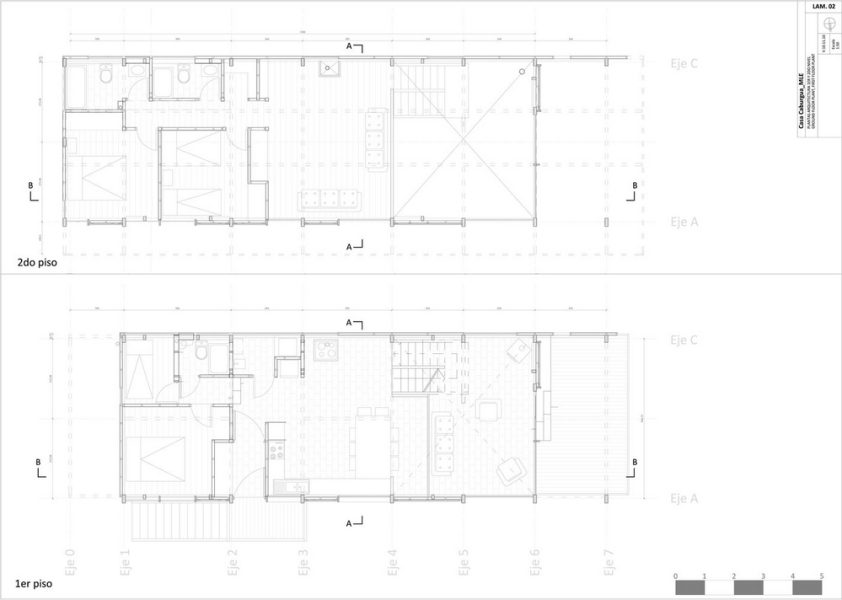
La planta se configuro en dos niveles principales, estando el inferior dividido en 3 subniveles. Las habitaciones se dispusieron hacia el norte, dejando los baños y lavadero hacia el sur.
La estructura de la casa se configuró con 7 marcos de Madera Laminada que permitieron crear una especie de galpón, en donde se dispusieron interiormente los distintos espacios. Para aumentar esa imagen de cajas dentro de otra, las habitaciones del segundo piso no llegan a la cubierta, dejando además un colchón de aire por sobre ellas.
Las fachadas fueron trabajadas de dos formas: la norte y poniente se configuraron con grandes ventanas y una fachada ventilada con un siding de madera laminada. Además en la fachada norte y poniente se incluyeron aleros para proteger de la lluvia a la madera. En las fachadas sur y oriente se utilizó un revestimiento metálico pre pintado, buscando una mayor protección ante la lluvia, dejando además, aberturas mucho más controladas.
[unitegallery Casa_Caburgua]



















