El proyecto se encuentra en el cerro Tacna, una meseta elevada sobre el nivel del mar, al sur de Maitencillo. El sitio se ubica en un loteo de construcciones diversas en calidad, materialidad y tamaño, donde, por la estrecha dimensión de los sitios (15 mts de frente y 35 de fondo en orientación este oeste) las vistas se cruzan con facilidad.
Una casa de playa debe ser un espacio de descanso que propicie momentos de calma y otros de reunión. Debe funcionar bien para una pareja sola y para recibir visitas inesperadas. También debe garantizar privacidad invernal y espacio para una parrilla en verano. Aquí los exteriores adquieren mayor protagonismo, el largo de los recorridos ocupan el tiempo extra y las vistas al cielo, al bosque o al mar concentran la atención del veraneante. La casa es una extensión de la playa a la cual se puede entrar con arena en los pies.
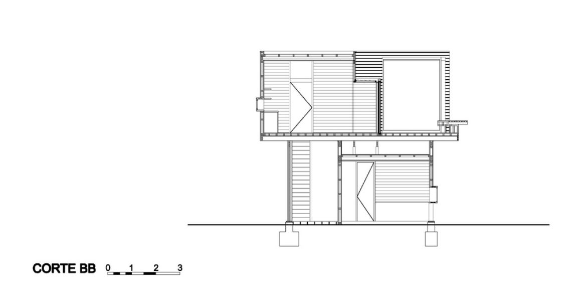
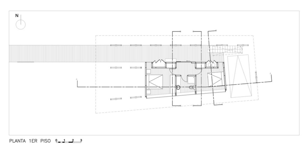
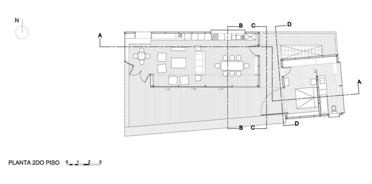
La casa consiste en una plataforma elevada a 3,8 mts sobre el nivel de terreno natural que soporta en su nivel superior dos volúmenes independientes de dormitorio y estar/cocina, y un tercer volumen de dormitorios de visitas bajo el plano de la plataforma.
Estos volúmenes están dispuestos de manera libre sobre la plataforma, descalzando sus bordes, para dejar parte de la plataforma libre, logrando que los espacios interiores se apropien de los exteriores con naturalidad.
Esto permite que las conexiones entre estos 3 volúmenes sean siempre exteriores, utilizando la plataforma como espacios de libre circulación. La altura y ángulo de la plataforma elevada garantiza la vista poniente hacia el mar y la puesta de sol.
La terraza tiene mayor privacidad al desarrollarse a lo largo del volumen del living-comedor el cual hace de espalda hacia la construcción vecina. A su vez, una ancha banca corrida hacia el sur acota el espacio de la terraza y funciona como un buen lugar para tomar el sol.
La abertura completa de los ventanales del living-comedor permiten incorporar la terraza en su totalidad al espacio de estar, duplicando su superficie.
Por el contrario, las ventanas hacia el vecino son vanos puntuales que contienen vistas precisas y acotadas, y su mayor espesor permite ubicar en ellas objetos que se recortan contra la luz del norte.
Estructura de madera
La estructura se ordena de modo de liberar lo más posible el nivel inferior, permitiendo despejar la mayor parte del sitio en su primer piso para a futuro armar un jardín y ubicar una piscina.
Este aire se construye con el volumen de dormitorios de visitas, que disfruta en este primer nivel de una vida independiente al resto de la casa, y a través de una línea de diagonales con forma de V que arriostran la estructura en el sentido oriente-poniente en todo el largo de la fachada norte.
La casa esta construida en madera de pino impregnado, como muchos de sus vecinos del barrio. Todo el proyecto y su construcción fue realizado en 10 meses.
Fotografías: Felipe Camus
[unitegallery Cerro_tacna]































