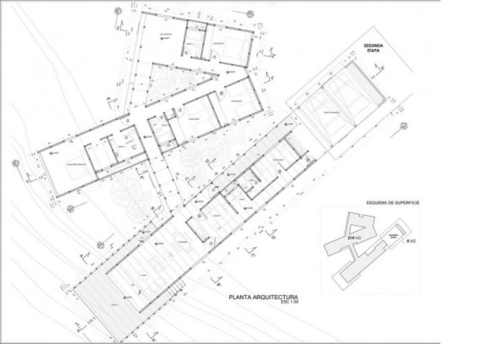
La obra se emplaza a orillas del lago Rupanco en una ladera de exposición sur , dentro de un bosque de Olivillo, Tepa y Coigue. Dado del valor de las especies arbóreas del entorno, obra se proyecto en base a insertar el programa solicitado en relación la trama de los arboles existentes.
El programa, una segunda vivienda, se ordena en tres volúmenes los que se agrupan en dos conjuntos, los cuales ambos se emplazan en una relación transversal entre el lago y el bosque tomando en el largo la exposición de sol norte. El primero de ellos contiene el programa de acceso y recintos públicos, y los otros dos el grupo de dormitorios que se agrupa en torno a un patio de luz que tiene en el centro un árbol del bosque centenario.
La utilización de grandes ventanales se define en la propuesta de entender el bosque como un primer espacio de cobijo, donde la circulación interna de la casa establece “salir ” hacia corredores entregados totalmente al paisaje, para luego entrar nuevamente a los volúmenes de recintos.
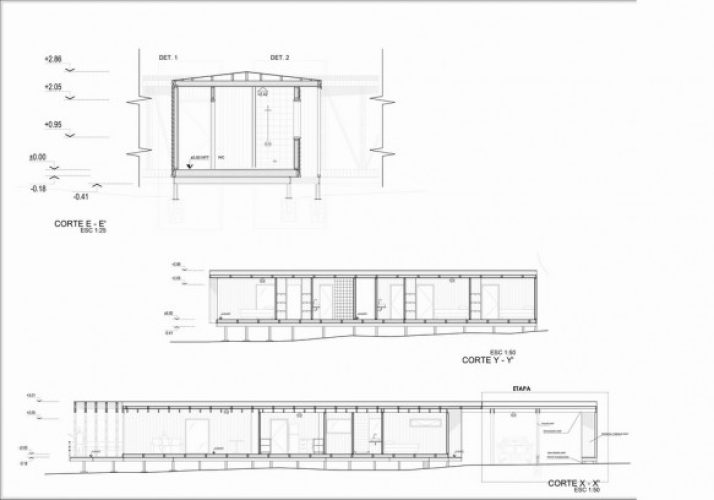
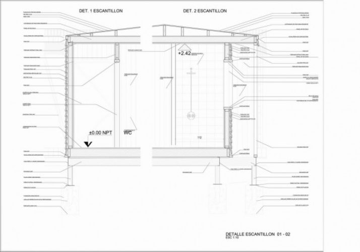
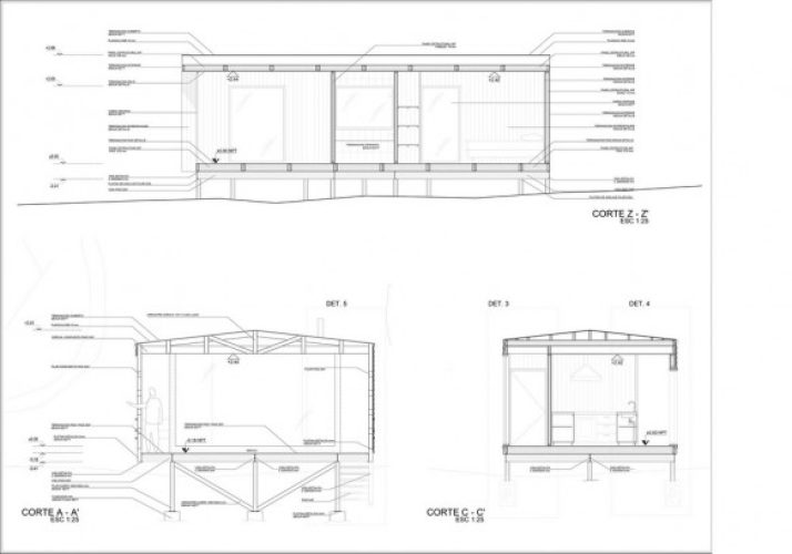
La materialidad es de estructura de acero en pilotes y base sobre la cual se levanta la estructura de recintos en paneles SIP y estructura de madera a la vista. El dimensionamiento de muros y vanos están determinados bajo la medida de los paneles. Para las terminaciones se utilizo pino dimensionado en las estructuras de terminación, y maderas de olivillo para cubiertas de muebles.
Como respuesta al agua lluvia se propone un volumen hermético, simple y sin aleros que generen sombras y humedad. El agua corre por la hojalatería de cielo y baja por los muros de fachada ventilada.
Se puso especial atención al el diseño especifico y detallado de las piezas de hojalatería, donde un sistema de hojalaterías está permanentemente sacando el agua hacia el exterior: cumbrera de techumbre, remate de cornisa superior, cortagoteras superiores e inferiores en cada vano, remates de junturas, remate inferior de termino de fachada, hojalaterías esquineras internas en todas las junturas de paneles, y endolados de hojalata a modo de premarco de ventanas.
Fotografías ©Sergio Araneda
[unitegallery Obra_casacorredores]



















