Casa de madera

Empresa / oficina: Estudio Borrachia

Arquitecto a cargo: Arq. Borrachia

Ubicación: Exaltación de la Cruz; Barrio El Remanso; Pilar

País:  Argentina

Superficie construida: 75m2

Año de construcción: 2016

Fotógrafo: Fernando Schapochnik

Ir al Sitio Web

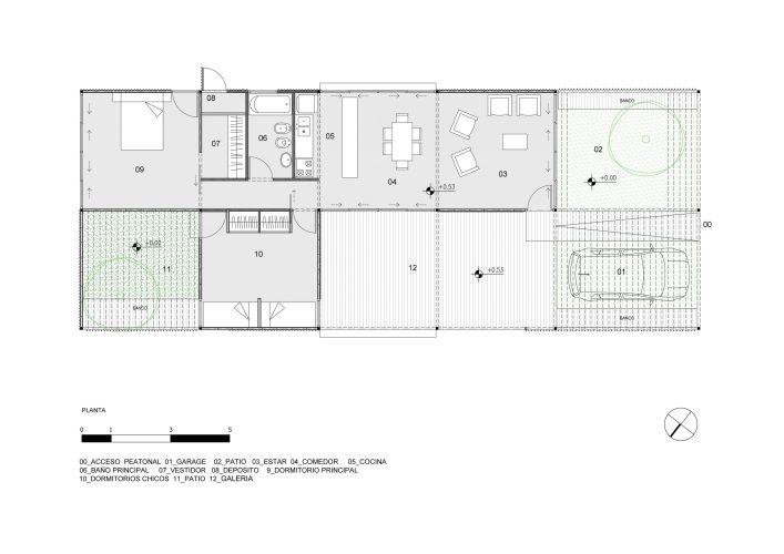
La casa de madera es una vivienda de fin de semana, pensada para una familia de cuatro integrantes; un matrimonio joven con dos hijos pequeños, y con la posibilidad de crecer hasta incluir un espacio para huéspedes o estudio;

Se desarrolla en planta baja y posee la particularidad de estar construida totalmente en madera. Solo en altura se encuentra la cubierta verde, una porción de suelo que se replica; donde crecen plantas silvestres casi sin mantenimiento obteniendo un nuevo espacio natural fusionado con el follaje y la copa de los árboles.

La casa de madera se inscribe en una serie de casos de vivienda desarrollados por el estudio a los que llamamos "viviendas habitat", por la lógica con la que se entiende su relación con el entorno y todo lo que esto trae aparejado.

Cada una de las decisiones de índole proyectual que se toman en este sentido tienen que ver con la máxima eficiencia de los espacios logrados y la exacerbación de la vida al aire libre y en contacto con la naturaleza.
La separación de la casa del suelo, la búsqueda de orientaciones, vistas y ventilaciones cruzadas, la cubierta verde y los espacios de sombra que rodean a la casa, tienen su base en decisiones que posibilitan este contacto y finalmente el máximo ahorro energético, económico y de recursos posible.

Concebida de manera modular y en consonancia con las posibilidades tecnológicas que la construcción en madera permite, esta obra construida en un plazo de 5 meses, permitió mantener su entorno inmediato en estado natural sin alterar el ecosistema. Incluso si se requiere podría ser desmontada en cuestión de días y el entorno permanecería intacto.

Entendemos a la madera utilizada como estructura, cerramiento, división y cubierta, jugando el papel principal en la lógica material de esta casa y al mismo tiempo como un motor de búsqueda acerca de nuevas alternativas constructivas, en base a sistemas de origen autóctono, con materiales de fácil manufactura y manipulación, existentes en todo el territorio de nuestro país y adaptables a diferentes geografías y condiciones climáticas.

Esta casa propone no sólo la respuesta al problema puntual y específico de su proyecto y construcción sino también es para el estudio la verificación de una serie de investigaciones que estamos llevando adelante desde hace algunos años sobre la implementación de sistemas prefabricados en seco de bajo costo y rápida materialización.

¡Comparte nuestro contenido!