La vista hacia la localidad de Rungue, se presentaba como un plano inclinado hacia el valle con la Cordillera de la Costa como telón de fondo. El terreno sugería una gran terraza, una explanada sobre la cual observar la totalidad de este escenario.
El proyecto se inicia con la idea de un deck de madera. Sobre esta plataforma se habría de incorporar los recintos de la casa. Pero los recursos estaban destinados exclusivamente a esta terraza, y el espacio interior alcanzaba sólo para un gran estar incorporado a ella.
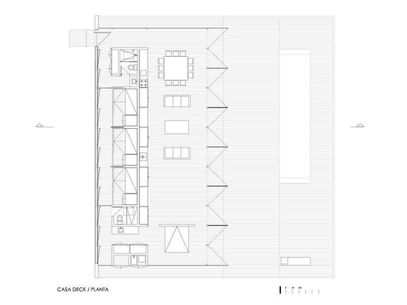
Se decidió por lo tanto destinar casi la totalidad de estos recursos a solucionar la vivienda en base a dos compuestos principales: un deck y un recinto de estar, este último, capaz de absorber la cocina, el comedor e incluso el dormitorio principal.
Se decidió además, bajo la premisa de que en una casa de veraneo los dormitorios se ocupan solamente para dormir, eliminar dicho concepto y cambiarlo por el de dormidero, con lo cual el espacio destinado a dormitorios se elimina casi por completo del proyecto.
Mediante un pliegue de este deck se consigue una concordancia con la inclinación del terreno a la vez que se encierra al espacio destinado para la vivienda. El exterior se trabaja entonces como un área libre que descansa sobre el relieve y el interior como una cápsula de vidrio incorporada a los pliegues de esta lámina de madera.
El interior a su vez fue dividido longitudinalmente en dos mediante un muro ancho de servicios, al que se le incorpora la cocina y los baños, además de un set de camas en tres niveles hacia la parte posterior de la casa. Estos dos espacios se convierten entonces en una gran zona de estar familiar, comedor y cocina por una parte y un pasillo-dormidero con camas por otra.
La lámina de madera que genera este deck recorre toda la casa, desde la parte más baja –en la cual se ha incorporado la piscina- convirtiéndose luego en el techo, dejando en evidencia, ya desde una primera aproximación a la casa, el uso de la madera en todas sus partes.
El deck principal que incluye la piscina deja una inclinación, producto de la pendiente del terreno que mira hacia el oriente, como una reposera del tamaño de toda la vivienda, admitiendo la posición del cuerpo en descanso como si se tratara de una gran chaise longe. La cubierta de la casa se inclina en el sentido opuesto, sirviendo esta vez de solarium hacia el poniente del sitio.
Fotografía: Cristobal Palma
[unitegallery Casa_deck]





































