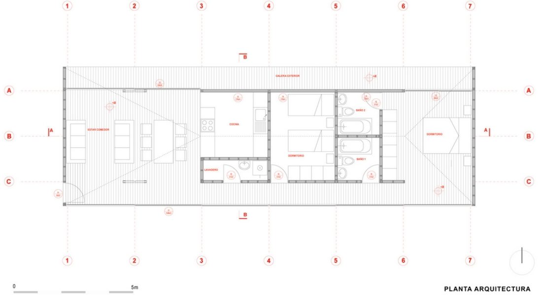
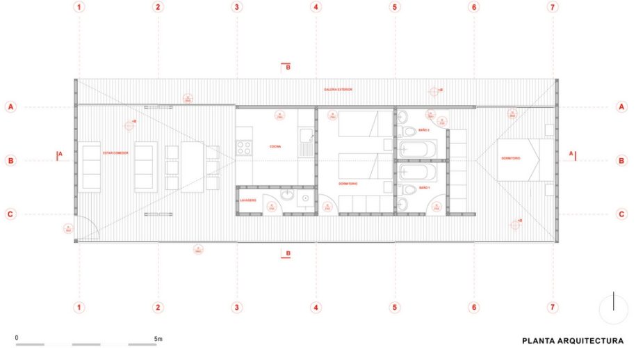
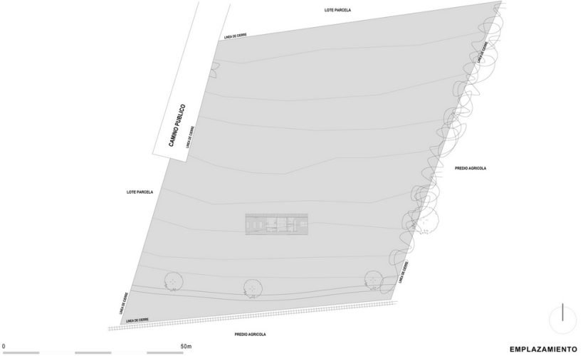
La casa se emplaza junto al único ramal ferroviario (aún) operativo del país. Es por esto que su forma intenta recordar a esas viejas estaciones rurales diseminadas junto a la línea, donde el techo y su galería son sus más importantes atributos. Y la construcción es solo eso: una única techumbre que cubre un espacio a modo de galería.
Esta gran techumbre es soportada por dos largas vigas maestras que atraviesan toda la casa en su largo y que descansan en una caja de madera que alberga todo el programa funcional. Alrededor de esta caja se despliega el resto del programa distribuyéndose en un movimiento continuo alrededor de este elemento.
La estructura – casi completamente de madera – siempre queda rezagada con respecto a los plomos exteriores lo que le otorga una cierta levedad a la edificación, pareciendo no tocar nunca el suelo.
Un único manto plegado envuelve completamente su apariencia externa, como si de un mantel se tratara. Donde este no alcanza, unos grandes ventanales – en sus fachadas norte y sur – permiten extender su interior más allá de sus límites físicos entendiéndolo como un espacio único y continuo con su exterior inmediato. Es un interior con vocación de exterior.
Fotografías: Cristián Axl Valdés
[unitegallery Casa_Ramal]
























