Esta casa de temporadas se encuentra a pasos de una larga playa abierta, sobre una duna levantada delante de un humedal. El proyecto se plantea como un conjunto de cuatro unidades estructurales similares, que se abren gradualmente al exterior en distintas direcciones y confluyen en una cocina central, conformando una estructura mayor compacta.
Cada unidad consiste en un interior conectado a un patio, ambos cubiertos por un envigado en común, abiertos por dos lados al exterior, y separados por un muro de la unidad colindante. Estas cuatro estructuras rectangulares se disponen adosadas, rotadas 90˚ respecto de la vecina, conformando una planta interior en cruz sobre un basamento cuadrado con cuatro patios en sus esquinas. La punta de la cruz que enfrenta el horizonte alberga un estar conectado a la cocina central y comedor en un recinto continuo. En la punta opuesta se sitúa una pieza de invitados mirando el humedal. A ambos costados, dos unidades de dormitorios-patio enfrentan las penínsulas de los extremos de la playa.
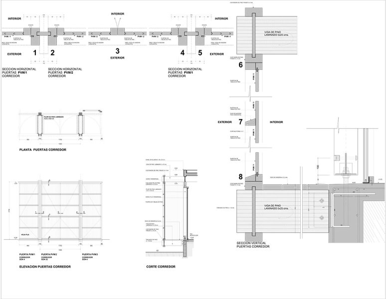
La construcción se concibe íntegramente en madera de pino sin nudos, tratada con imprimante fungicida en cámara industrial, y protegida en obra con aceite cobertor. Las uniones se resuelven mediante ensambles madera – madera con juntas encoladas, prescindiendo de juntas metálicas expuestas al óxido marino.
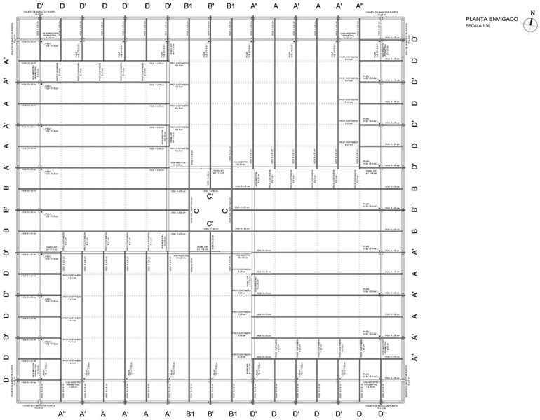
La estructura consiste en un sistema de vigas laminadas dispuestas cada 95 cm. en perpendicular a los cuatro muros estructurales que las apoyan en un extremo, y a cuatro vigas maestras perimetrales, que a su vez descansan en una serie de pilares cada 190 cm. La crujía de estas cuatro estructuras rectangulares es menor que la superficie total de la planta, de modo que su disposición rotada sobre el basamento cuadrado genera una lucarna de 190 x 190 cm. en la cocina central. La secuencia de pilares perimetrales se encuentra desfasada medio módulo respecto de esta lucarna. Así, el vano entre pilares, que marca el centro de la vista al exterior, se percibe en diagonal desde el centro de la cocina, acentuando la percepción del exterior como una panorámica en movimiento.
Tras estos pilares, distanciados 95 cm., 72 puertas de madera delimitan la casa. Al abrirlas, el horizonte se ve enmarcado por una hilera de portales, y los patios son sólo accesibles desde el interior con el que colindan. Al cerrarlas, en cambio, se puede circunvalar de patio en patio por un pórtico interior protegido del viento y la vista exterior. Y al dejar la casa inhabitada, queda hermética ante su entorno, protegida por su propio perímetro.
Fotografías: Luis Izquierdo
[unitegallery casa_morrillos]













