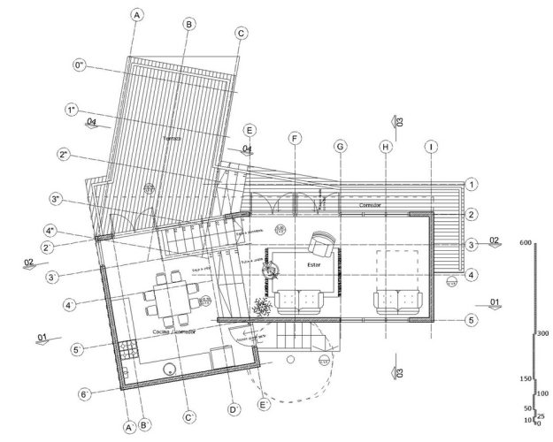
La casa se emplaza en un lote muy angosto y alargado – 16,5 por 80 metros – en una ladera de cerro con exposición norte, bonitas vistas sobre la caja del río Maipo y una pendiente muy pronunciada.
El proyecto y posterior construcción se inició con una idea bastante clara, por parte de los mandantes, sobre cómo debía situarse la futura edificación en el terreno, ya que el sitio cuenta con un único sector plano a media altura, el cual se pidió mantener como patio, no posando la casa sobre éste, sino ubicándola a continuación, pendiente abajo, sin interrumpir la vista al Maipo.
Con este punto de partida, el encargo consistió en una casa de descanso para el joven matrimonio y su hijo, siendo los espacios interiores sólo el refugio que posibilitaría disfrutar del lugar, las vistas y los almuerzos al aire libre los fines de semana.
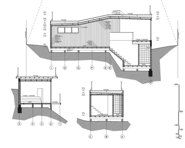
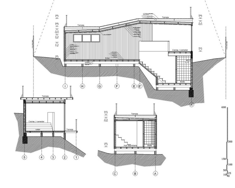
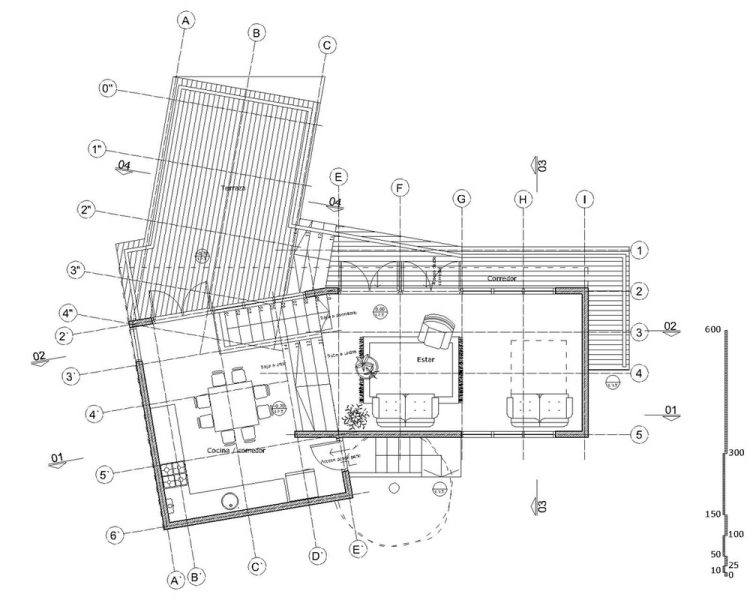
Bajo esta perspectiva, desarrollamos un proyecto consistente en una construcción que se adapta a la pendiente del terreno en tres niveles que organizan el programa en un espacio continuo sin divisiones interiores, recogiendo el carácter de cabaña de fin de semana que buscaban los mandantes y ampliando la percepción espacial de las dimensiones acotadas de la casa. El espacio no define usos específicos, sino que busca preservar la informalidad y flexibilidad que les permita acoger a varios invitados o disfrutar en soledad. Por otra parte, las cubiertas de la casa se definen como techos-terraza, de modo que no sólo el patio se proyecta sobre la casa, sino también los espacios interiores.
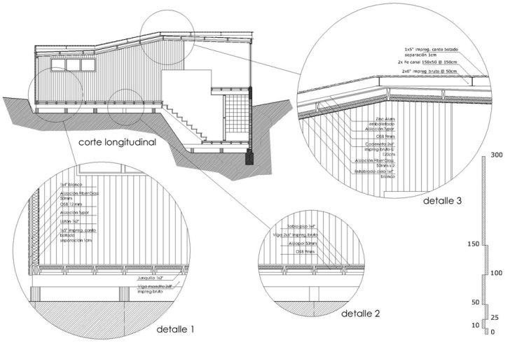
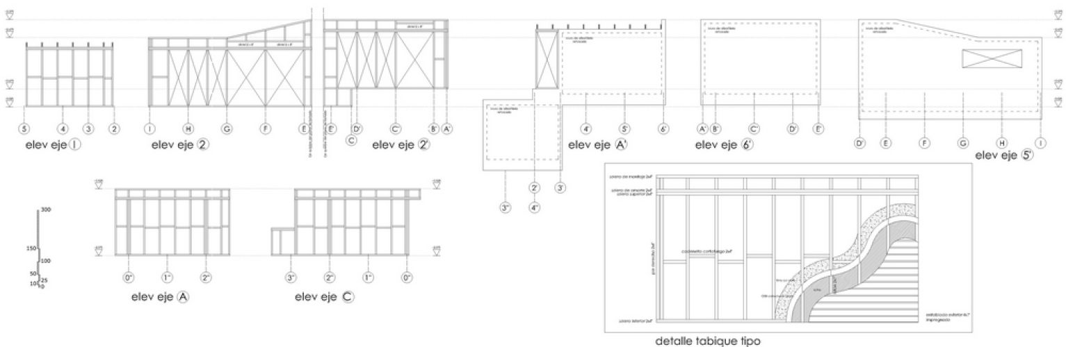
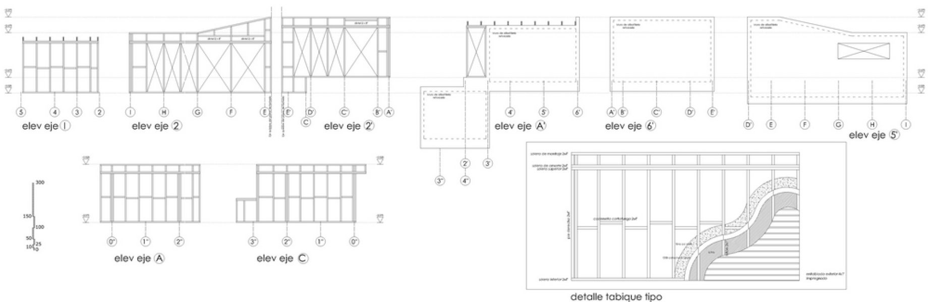
La construcción es una combinación de muros de contención contra el cerro y estructura de madera en los volúmenes que se despegan de éste. Se utilizó pino radiata en interiores y exteriores, y roble de demolición en ventanas y muebles en obra. La complejidad del sitio y el acotado presupuesto con que se contaba, propició soluciones muy creativas por parte de todo el equipo de construcción – mandantes, arquitectos jefe de obra y maestros – como el carrito-funicular que permitió alivianar el proceso de acarreo de materiales y bajar a los enfiestados luego de los tijerales.
Fotografías: 332arquitectos
[unitegallery casa_pirque]


































