CASA ENTRE DOS ROBLES
La casa, se emplaza a la orilla del río Liucura en la región de la Araucanía. La elección del material derivó del carácter atemporal que la mandante imaginó desde la primera visita al terreno en la ribera del río Liucura: “una casa que ha estado siempre ahí”. En consecuencia, se optó por seguir la tradición constructiva en madera y aprovechar la disponibilidad y variedad del material de la zona. Además, se trataba de una mujer que pasaría temporadas largas en la casa. La madera con los debidos tratamientos permitía un buen desempeño en el clima del lugar: frío y lluvia abundante en invierno y a una temporada de verano intensa.
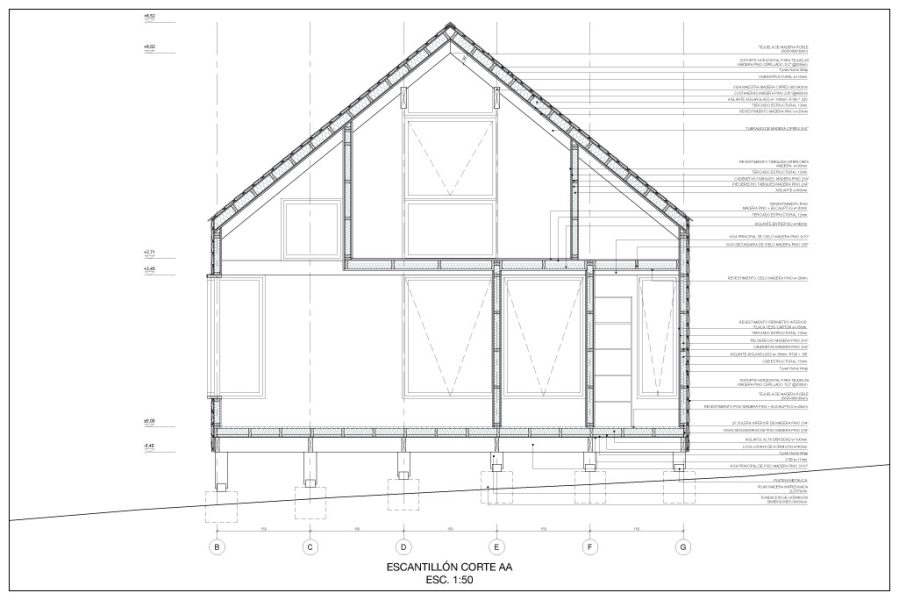
La casa está emplazada en un terreno con una pendiente aproximada del 10% entre dos robles existentes y se organiza en un solo volumen a dos aguas de 17 x 12 x 7 mts. elevado del terreno por medio de pilotes. El espacio interior del volumen se divide dos partes: Los extremos divididos en dos pisos, donde se encuentran los dormitorios conectados por un puente y el área central, donde están las áreas comunes de la casa en doble altura. La orientación sur de la vista hacia el volcán Villarica que se tiene desde la casa, se complementó con una lucarna en la cumbrera que permite la iluminación desde el norte.
La casa, fue diseñada a partir del material. La madera le confiere carácter, al tiempo que determina las principales decisiones proyectuales. El sistema estructural de marcos repetidos definen el volumen de la casa, relacionándola con la cultura constructiva del lugar y la estructura a la vista organiza el interior y conforma los elementos principales de diseño: los pilares y vigas maestras, la lucarna y el puente.
En todas las escalas del proyecto se usó madera de distintas especies y diversos tratamientos. En primer lugar, madera de pino estructural e impregnada complementada con placas de terciado estructural, para la plataforma de base, pilares, vigas primarias y secundarias, estructura de tabiques y entrepisos. Por su parte, se usó madera de ciprés en la estructura interior a la vista, pilares, vigas maestras y tijerales. También los revestimientos son de madera; machihembrado de pino horizontal en los interiores y tejuelas de roble en el exterior. Finalmente, el mobiliario en obra, muebles de cocina y repisas se realizó en Mañío.
La propuesta del proyecto es innovar al interior de una tradición constructiva y a partir del conocimiento local. La cultura constructiva en madera del lugar se aplicó para proyectar una casa en respuesta a las necesidades contemporáneas y específicas de la mandante, sin necesidad de alterar las prácticas tradicionales. De esta manera el proyecto busca poner en valor el conocimiento local a través de la actualización de sus sistemas.









