El arquitecto Josep Ferrando resuelve las complejas condiciones urbanas del contexto y el sitio en el que se ubica la casa ─de menos de 5 metros de ancho y con una topografía particular que limita la parcela entre dos calles situadas a diferentes alturas─ comenzando la concepción del proyecto desde la configuración del volumen.
El interior de la casa está habitado por la superposición de paneles laminados de madera que se adaptan a la topografía, organizan el espacio y transmiten un ambiente cálido a los espacios habitables.
El desafío de esta nueva vivienda radica en acercarse al proceso que conduce al proyecto arquitectónico con guías lineales creativas y constructivas capaces de resolver las condiciones decisivas inherentes al proyecto.
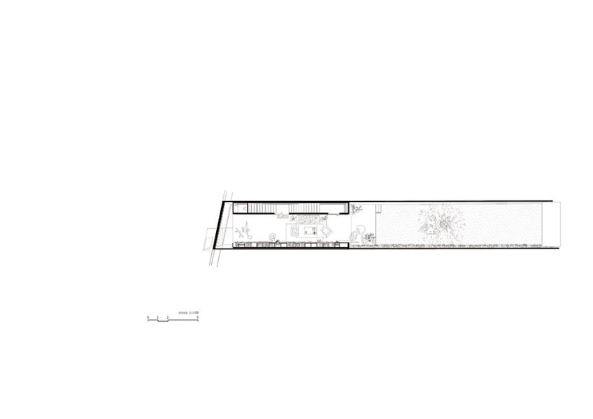
Concretamente, para el arquitecto Josep Ferrando, el punto de partida fue recrear una casa completamente nueva entre muros en el centro de Sant Cugat, considerado Patrimonio Cultural, por lo que obligó a la preservación de la fachada principal y techo de la casa. Además, el edificio debía tener menos de 5 metros de ancho y ocuparse de una compleja topografía que limitaba el emplazamiento entre calles de diferentes alturas.
Las paredes divisorias adyacentes a las casas vecinas aumentan su espesor y funcionan como un filtro y espacio de servicio generando en un lado un lugar de almacenamiento y en el otro, un «paseo» o espacio de circulación. El vacío que descansa entre ambos espacios de servicio se convierte en el área de estar. El espesor de las paredes construye fachadas interiores en longitud y aumenta la percepción del espacio desde una vista transversal.
Los perfiles metálicos en forma de L sostienen paneles de madera que se adaptan a la topografía y a las aberturas de la fachada preexistente, organizando el espacio y transmitiendo un ambiente cálido a los espacios habitables. Las diferencias de altura entre los pisos generan vistas cruzadas y llevan luz a todos los niveles de la casa, incluyendo la planta baja, gracias al hueco tallado en los pisos superiores. El programa de la casa está fragmentado, rompiendo la continuidad del plan horizontal de una manera que Adolf Loos denominó «Raumplan».
En general, la secuencia de una casa dentro de una casa va de materiales más urbanos a los más domésticos, construyendo una unión vacía entre ellos que permite que la luz y las vistas circulen por todos los espacios. El vacío interno se convierte en el espacio público de la casa. Este es el espacio en el que todas las vistas cruzan y las relaciones se construyen a través de la «barandilla-muebles» que lo delimitan.
Fotografías: © Adrià Goula
[unitegallery josep_ferrando]













