Tras el incendio de Valparaíso el 12 de Abril de 2014, arquitectos y académicos del departamento de Arquitectura de la Universidad Técnica Federico Santa María, encuentran la oportunidad para aplicar en un contexto real el Proyecto Casa FENIX, el cual se venía desarrollando tras la participación del equipo en el Solar Decathlon Europe 2014.
Casa FENIX se inició como una propuesta de vivienda de emergencia, a partir de módulos, la cual fuera la base para la construcción de una vivienda definitiva, permanente y de calidad. A la vez de cumplir estándares de normativa térmica en cada región, lo cual es una clara carencia en las viviendas autoconstruidas, se agrega el diseño bioclimático, tomando en cuenta factores de ubicación, latitud y orientación para el diseño arquitectónico. Por otro lado se propone un diseño participativo en el que las personas puedan decidir la ubicación de cada uno de los recintos mediante el juego con los módulos prefabricados y en donde los arquitectos consideran las necesidades peculiares de cada familia a la hora de realizar el proyecto.
En este contexto el equipo contactó a la familia Huerta Carvajal quienes habían perdido su casa durante el incendio, ubicada en la quebrada entre el cerro las Cañas y el Litre (Valparaíso), para realizar un trabajo en conjunto. El diseño se llevó a cabo durante la realización de dos talleres en donde la familia decidió la distribución general de los recintos de la vivienda y el programa. Durante reuniones a los largo de la construcción en conjunto con la familia se decidieron las terminaciones y otros detalles. La construcción se llevó a cabo con constructores de la zona y se recibieron aportes de las empresas DECEUNINK, SODIMAC, VENERGÍA, VOLCÁN y CINTAC.
El proyecto se desarrolló como un proceso experimental, el cual la familia y el equipo de la UTFSM aceptaron como un desafío, ya que este sistema de vivienda se había construido anteriormente sólo dos veces como/en calidad de prototipo.
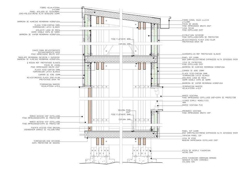
La vivienda se construyó con madera en su estructura prefabricada principal y recubierta en piso, techo y muros con distintos materiales existentes en la industria, pero siempre cumpliendo con los estándares térmicos actuales según zona. En la arquitectura se consideraron elementos típicos de la ciudad, como la galería y los revestimientos exteriores metálicos. El área construida de 92,5 m2, en comparación a otras viviendas de subsidios similares, conforma una vivienda amplia de 3 habitaciones en donde se quiere aprovechar al máximo la luminosidad del lugar.
La casa cuenta también con sistema de paneles solares térmicos para ACS (mixto solar/gas) y cuatro paneles fotovoltaicos para la generación eléctrica. Actualmente, el desempeño de la casa está siendo medido en el marco del Proyecto FIC-R 2015 Valparaíso mediante el cual también se quiere dar a conocer el proyecto y el uso de energías renovables en la vivienda social.
El objetivo final de este proyecto es construir viviendas subsidiadas de mejor calidad, aprovechando al máximo los recursos y donaciones, participando en conjunto con los distintos actores (Gobierno-Comunidad-Industria) y aplicando la tecnología y estudios desarrollados en el contexto académico para su aporte a la comunidad.
Imágenes: © Alejandra Carrasco | © Valeska Cirano
[unitegallery casa_fenix]























