Casa FS

Empresa / oficina: Estudio Dikenstein Arquitectos

Arquitecto a cargo: Pablo Dikenstein

Ingeniero Estructural: Estudio Dikenstein

Cliente:  Privado

Ubicación: La Reina, Santiago, RM, Chile

Ingeniero: Estudio Dikenstein

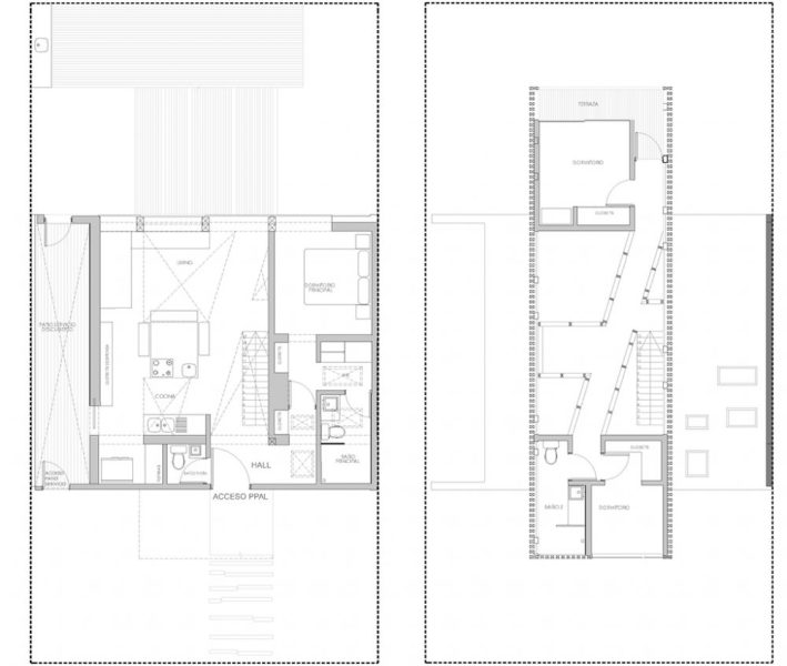
Superficie construida: 120

Año de construcción: 2016

Fotógrafo: Nicolas Saieh

Memoria

Ubicada en un pasaje cerrado en la comuna de La Reina, Santiago, RM, con 120 m2 mas terrazas, la remodelación completa  irrumpe el entorno mediante su forma y su materialidad. Los materiales escogidos reflejan el relato que se desea exponer al estar viviendo la casa; “sentirse fuera de la ciudad” otorgando un aspecto rustico moderno, utilizando mayormente maderas en pino tratadas y en contraste se utiliza hormigón y vidrio. Generando hermetismo en sus fachadas para otorgar privacidad, la casa se cierra hacia afuera de lado a lado en sus deslindes de primer nivel, y el volumen superior también hermetizado a través de una piel en madera tipo celosía semi permeable, genera el acceso principal y una terraza cubierta. La estructura del volumen superior esta formada por elemento diagonales en pilares de madera 6×6 pino, generando  2 grandes cerchas que permiten volar sin apoyos. Se busca generar un área funcional  integral que fuese el centro  del programa donde se ganara la mayor cantidad de capacidad espacial para poder dar la sensación de estar en un espacio amplio, vivo, con buen intercambio de  aire y mucha luz. La casa se origina en torno a este espacio el cual fue diseñado contemplando la cocina, el comedor y el living. En la misma planta se incorpora el dormitorio principal con baño y wcl, baño de visita, despensas, logia con acceso de servicio independiente En el segundo nivel se incorporan 2 dormitorios con closets, 1 baño, escritorio y terraza. El conector de estos dormitorios es un puente quebrado que juega en el desorden espacial de la zona común y genera aperturas para el acceso de sol norte desde el segundo piso.  En este lugar se obtiene aperturas de ventanas en ambas fachadas (norte y sur) para otorgar ventilación cruzada con el primer nivel. El patio trasero y principal, tambien fue tratado en su totalidad, revistiendo los deslindes con varas y generando diferentes plataformas a nivel se suelo para obtener mayor recurso espacial. La casa FS integra la luz, la apertura espacial, la nobleza de sus materiales y el estilo minimalista / contemporáneo en un espacio con recursos limitado, otorgando una nueva forma de habitar el espacio del dia a dia, haciendo que la madera sea el invitado de honor que viene a estructurar y vestir en todos sus espacios.

¡Comparte nuestro contenido!