Empresa / oficina: Vicente arquitectos
Arquitecto a cargo: José Pedro Vicente
Ingeniero Estructural: Jose Antonino Abarca
Cliente: Felipe Merello
Ubicación: Fundo La Merced, Lago Riñihue. Valdivia
Ingeniero: Jose Antonino Abarca
País: Chile
Año de construcción: 2021
Tipo de construcción: Santiago
Fotógrafo: Banny Sandoval
DOCUMENTOS ADJUNTOS
Descripción del proyecto
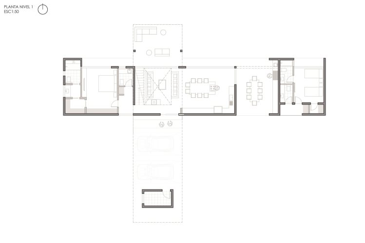
El encargo consistió en una segunda vivienda a ubicar en el Fundo La Merced, Lago Riñihue, Valdivia. La obra cuenta con 277m2 y se encuentra emplazada en un terreno de 5000m2, con una pendiente del 12%. Se proyectó y construyó en plena pandemia, por lo que, al ser el abastecimiento escaso y dificultoso, tanto estructura como terminaciones y mobiliario no solo fueron resueltas con las maderas disponibles en la zona, sino, además, se realizaron sesiones de trabajo con los maestros a fin de que expusieran su experiencia sobre dicho material, sus contactos para conseguirla y así definir en conjunto su aplicación en cada partida. La obra se propone en base a dos cuerpos cruzados, uno sobre otro, para conseguir espacios exteriores bajo techo, siendo la arquitectura, la encargada de proteger su habitabilidad y uso del clima lluvioso.
Innovación en el uso de la madera
Por problemas de abastecimiento, todos los elementos del proyectos fueron remplazados por madera. Desde la estructura hasta los revestimientos tales como piso, muros y cielos exteriores e interiores. Así también elementos tales como antepechos, barandas, puerta principal y peldaños de escala fueron ejecutados en Roble y Coigüe. Todo el mobiliario de baños, closets y camas se ejecutaron en pino, luego fueron teñidos con barniz tono ceniza de Milesi
Desempeño Técnico
Estructura: Pino blanco, montantes de 2”x4” instalados cada 60 centímetros. Cerchas: Pino Oregón de 3”x8” y herrajes ocultos Revestimiento cielos: Tablas de Roble Hualle ½” x 4” tanto para interiores como exteriores Revestimiento de piso: Coigüe nativo Revestimiento muros, cara interior: Tablas de Roble Hualle ½” x 4”
Propuesta conceptual y/o impacto
Su elección fue forzada producto del desabastecimiento de materiales en plena pandemia. Se consiguieron distintos tipos de madera, según la partida a trabajar, esto significa, maderas resistentes para la estructura, maderas duras para el piso y maderas dúctiles para soluciones de revestimiento y mobiliario. Así también, maderas naturalmente resistentes a la intemperie. La madera, al ser un producto natural y local, no solo es renovable y de baja contaminación en su producción, sino además, de fácil consecución y traslado inmediato dado el punto de producción y ubicación de la obra.










¡Comparte nuestro contenido!