La propuesta se desarrolla bajo el encargo de un matrimonio que, teniendo como referencia la arquitectura típica de la zona (tanto en su geometría como materialidad), desea construir una vivienda que se habitará por periodos cortos durante todo el año, es decir, su uso no se restringe solo a meses de verano o vacaciones de invierno.
A la variable formal entregada por los clientes, el galpón construido en madera a mediados del siglo 19 por los colonos alemanes, se suman factores tanto de espacialidad como de luz natural que son de suma importancia para el buen habitar del proyecto.
A partir de la manera en que se imaginan los propietarios se usará la casa, es decir, en su mayoría de tiempo solo serán ellos los habitantes del proyecto, se asume como estrategia de diseño esta condición de uso y un segundo factor, la vista oriente que da como resultado tanto el lago Llanquihue como 4 volcanes, Puntiagudo, Osorno, Tronador y Calbuco.
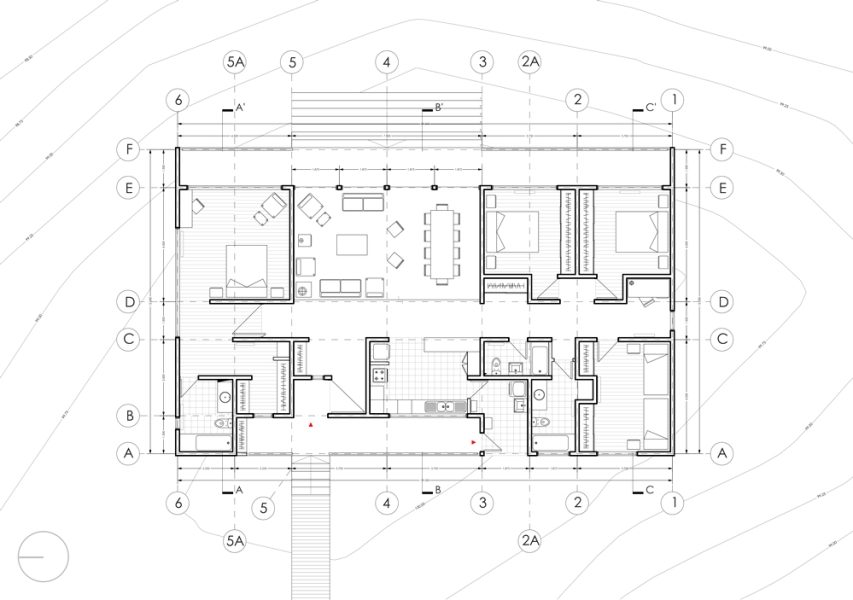
A partir de las variables mencionadas anteriormente se propone un paralelepípedo rectangular cuya subdivisión interior está dada por un pasillo que distingue los lugares de permanencia con los de no permanencia (zonas húmedas), es decir, dormitorios y living-comedor enfrentan el oriente y cocinas y baños, el poniente.
Una vez determinada esa zonificación programática se decide generar un espacio jerárquico, living – comedor, que tanto por su tamaño como por su importancia en la manera en que se habita la vivienda pasa a ser el lugar de encuentro entre los habitantes de esta. A partir de esa lógica de encuentro, ese espacio permite entender los dos extremos del volumen, con esto, se obtiene como resultado un lado(norte) dedicado a los dueños de casa, quienes no tienen la necesidad de habitar los demás recintos al estar ellos solos en el lugar y por otro lado, las demás habitaciones y sus respectivos baños.
A modo de complemento se decide incluir como parte del espacio jerárquico la cocina, que si bien está separada tanto del estar como del comedor por un eje de circulación, se entiende como parte de ellos en base a su apertura y en como la luz que entra por su cara(poniente) complementa a los recintos mencionados anteriormente.
El uso de la techumbre con exagerada pendiente no solo tiene como fin la rápida caída de agua en días de intensas lluvias si no que, aprovechando esta condición, se generan aperturas (norte y oriente) que mantengan los lugares comunes con iluminación natural la mayor cantidad de horas durante el día.
Todas las estructuras portantes y autopotantes (a excepción de fundaciones y pilotes) son construidas en madera, siendo la perimetral fabricada en paneles SIP los cuales reducen los puentes térmicos y dan rapidez en la fase de construcción. Sobre estos, una fachada ventilada en base a una grilla de listones y forrada con teja asfáltica.
[unitegallery Obra_CasaFV]



















