Un refugio para un surfista que rescata el mar en su horizonte.
Al borde de un camino de tierra rodeado de añosos eucaliptos y cipreses, se descubre los lomajes de Punta de Lobos, Pichilemu, un paisaje solitario y elevado con el mar en su horizonte de una de las mejores olas del mundo.
La casa se sitúa en terreno con pendiente, por eso la importancia de respetar e integrar a las construcciones vecinas. Esta premisa acaba configurando la planta y posterior volumetría que refuerzan la voluntad de orientarnos hacia el paisaje.
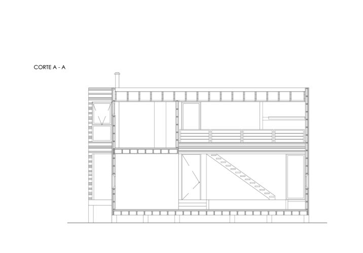
Tratándose de un refugio de vacaciones, se proyectan dos volúmenes, un gran volumen público correspondiente al primer y segundo nivel, con una organización interior abierta de doble altura, que facilita la comunicación entre espacios con orientación al abierto paisaje en su lado largo.
El otro volumen de carácter privado ubicado en segundo nivel está destinado a un espacio más íntimo enmarcando al mar y las olas de Punta de Lobos.
Se consideró una materialidad sencilla, utilizando madera local. La fachada ventilada un sistema utilizado donde el revestimiento de madera instalado horizontalmente permite mayor aislación térmica y también una configuración que sintetizan la propuesta y ayudan a verla como un refugio vacacional.
La casa se eleva sobre pilotes para no interferir en el medio, perimetralmente es una estructura de vigas metálica para lograr mayores espacios.
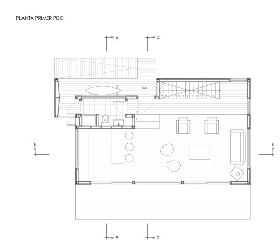
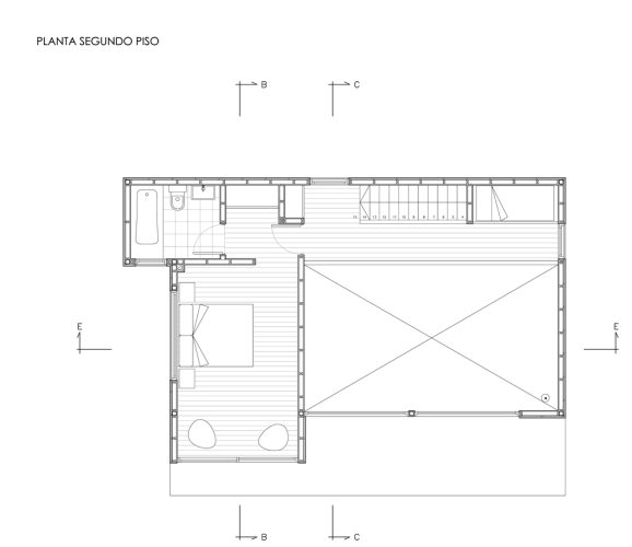
La distribución interior es una planta libre. En el primer nivel contiene el estar, comedor, cocina y terraza comparten vistas entre las diferentes unidades y un baño para visitas que funciona de manera simultánea con el exterior para el surfista. En el segundo nivel en el lado norte está el dormitorio principal en suite enmarcando el mar con un determinado voladizo, hacia el lado sur se proyectó una circulación mirador generando una doble altura que remata en camarotes en obra para invitados y una entrada de luz para una posible ampliación.
Durante el día y noche todos estos recintos dialogan generando una especialidad flexible en su uso.
Fotografías: Paula Rodríguez
[unitegallery Obra_CasaH]





















