CASA I | SISTEMA COMPONENTES

Empresa/Oficina: Triangular Arquitectos

Arquitecto a cargo: Tomás Swett Amenábar y Gabriel Diaz Riadi

Ingeniero estructural: Felipe Cardemil W.

Cliente: Reservado

Ubicación: Zapallar, Valparaíso

Pais de obra: Chile

Superficie construida:101-300

Año: 2024

Fotografo: Nicolás Saieh

Categoría: Categoría A: Obras que comprendan hasta 1.000 m2 construidos

DOCUMENTOS ADJUNTOS

© Derechos reservados por sus autores intelectuales.

Memoria del proyecto

Casa I es la primera vivienda construida con el “Sistema Componentes”, desarrollado y perfeccionado junto a la constructora Iglú SpA. Este sistema fue diseñado para abordar diversos encargos habitacionales bajo tres principios: reducir costos y tiempos de construcción, minimizar el impacto ambiental y mantener altos estándares constructivos, térmicos y arquitectónicos.

El encargo consistía en una segunda vivienda en el litoral central de Chile, con tiempos de diseño y ejecución muy acotados y un presupuesto definido desde el inicio.

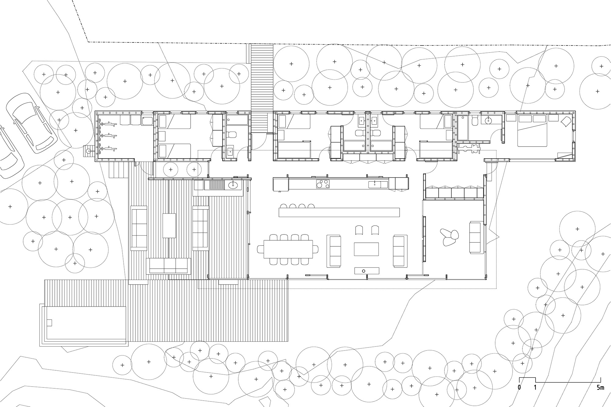
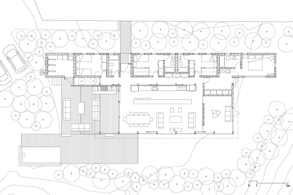
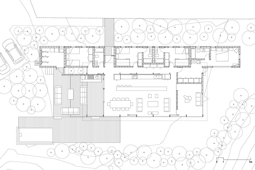
El diseño propone dividir el programa en dos áreas: dormitorios y espacios comunes. El primer sector, de menor altura y orientado al nor-oriente, destaca por su eficiencia térmica. El segundo, un volumen vidriado con vista al mar, cuenta con mayores alturas, pensado para recibir un mayor número de personas.

Innovación en el uso de la madera

El “Sistema Componentes” es un sistema constructivo tecnificado, completamente en madera, que se fundamenta en la industrialización de tres elementos principales: módulos cerrados, marcos estructurales y placas para piso y cubierta. Estos componentes, permiten abordar cualquier desafío arquitectónico relacionado con viviendas, ofreciendo soluciones únicas y personalizadas para cada cliente, al mismo tiempo que optimizan significativamente los tiempos de ejecución, los costos y el desempeño térmico. Antes de su fabricación, el proyecto se modela en BIM, lo que garantiza una documentación técnica precisa, libre de errores y discrepancias entre los distintos planos. Toda la estructura, obra gruesa e instalaciones, se ejecutan “off-site”, es decir, dentro de la fábrica. Esta modalidad reduce considerablemente los tiempos de obra, los imprevistos, la necesidad de mano de obra en terreno, y el impacto en su entorno. Únicamente la etapa de terminaciones, instalación de muebles, ventanas y sellos se realiza directamente en el terreno.

Desempeño Técnico

La Casa I, a través del “Sistema Componentes”, aplica estrategias de diseño bioclimático orientadas a reducir el impacto ambiental. La orientación y distribución responden a la trayectoria solar: los espacios comunes se ubican al sur y los dormitorios al norte, favoreciendo la captación solar pasiva. Esta disposición permite que los espacios comunes funcionen como búferes térmicos, aprovechando la transferencia de calor desde los recintos privados. Además, las ventanas abatibles en la cubierta aseguran ventilación natural cruzada en todos los recintos. Para su construcción se utilizó madera de pino Oregón para toda la estructura de madera, desde escuadrías de 2x4’’ para tabiques hasta 3x10’’ en pilares y vigas compuestas. Toda la envolvente está aislada con celulosa proyectada en 150 y 200mm. La madera a la vista está protegida con un aceite con proyección UV marca Osmo.

Propuesta conceptual y/o impacto

Consideramos el “Sistema Componentes” como un gran impulso al uso inteligente de la madera para viviendas. La lógica prefabricada y de montaje del proyecto minimiza su huella de carbono, reduciendo significativamente el impacto ambiental respecto a una construcción convencional (un 80%), con un total de 82.5 kg CO₂e/m² considerando transporte y montaje, frente a una casa convencional de albañilería u hormigón, la cual equivale aproximadamente a 450 kg CO₂e/m². (Fuente: ICE Database v3.0, One Click LCA y UK BEIS/DEFRA 2023). Casa I es solo el primer ejemplo de las bondades de esta nueva manera de construir, que utiliza la madera como elemento estructural y de terminación principal. Hoy, ya tenemos 2 nuevos proyectos en fabricación utilizando el mismo sistema, pero con un resultado arquitectónico completamente diferente. Esperamos que Casa I, con el “Sistema Componentes”, se transforme en un ejemplo para el desarrollo de arquitectura industrializada en madera en nuestro país.

¡Comparte nuestro contenido!