Casa IKER

Empresa / oficina: Medio Arquitectura

Arquitecto a cargo: Emiliano Ruidiaz Riffo

Ubicación: Villarrica

País:  Chile

Superficie construida: 122 m2

Año de construcción: 2021

Fotógrafo: Emiliano Ruidiaz Riffo

Ir al Sitio Web

“Casa IKER” es una vivienda unifamiliar para una familia de cinco; una pareja, su hijo, su hija y su perro Iker. Está ubicada en el sur de Chile, a 15 minutos de la ciudad de Villarrica. Buscaban una vivienda simple, luminosa, bonita y eficiente.

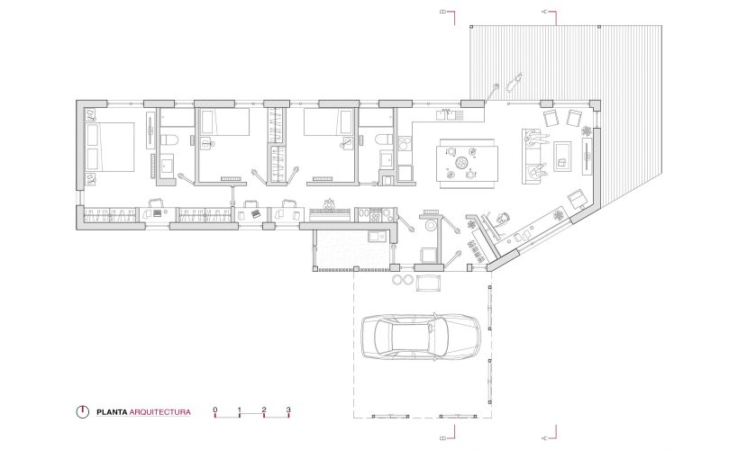
Se proyecta un volumen simple con todos los espacios principales de la casa orientados hacia el norte, aprovechando al máximo la luz y el calor del sol. Se ingresa a la vivienda desde el sur por una chiflonera para contener el frío, desde donde se accede directamente al área común, siendo recibido por la luz de una lucarna. Este espacio se posiciona en el oriente, recibiendo la primera luz de la mañana. Se proyecta una diagonal de 30° en el lado sur oriente, buscando la mejor vista del volcán Rukapillan. Aquí convive la cocina con una gran mesa de comedor, la cual puede transformarse en mesa de pool, el living y un taller de arte. Hacia el poniente, se encuentra un baño, dos habitaciones y al final de la vivienda, está la habitación principal en suite. El pasillo de la casa se utiliza al máximo, en él se disponen los escritorios, libreros y un piano. Estos espacios orientados al sur buscan luz pero no sol directo, ideal para actividades como estudiar o trabajar.

La madera es el material principal de diseño por ser un material versátil, sustentable y eficiente térmicamente. En el proyecto convive la tradición constructiva en madera del sur de Chile, pero mejorando los detalles constructivos, buscando proteger la madera y utilizarla en su máxima capacidad. Se utilizan varias maderas y en distintos formatos. La estructura principal es de entramado liviano de Pino Insigne, utilizando palos 2x6” para muros exteriores y cielos, y 2x4” para muros interiores. Se eligen terminaciones de Pino Insigne cepillado de primera calidad en los endolados de puertas y ventanas, revestimiento de cielo y de la pieza principal. Las puertas principales de la vivienda son de Laurel, árbol nativo de la zona. Se usaron tableros de OSB en los muros, posicionándolos hacia el interior de la vivienda, los cuales sirven como elemento estructural y barrera de humedad al mismo tiempo, protegiendo la estructura, todos sellados con cinta FlexiBand de Rothoblaas asegurando la hermeticidad del proyecto. Se usó MDF ultraliviano al exterior de los muros para que pueda soportar la aislación y por sus cualidades permeables que permiten al muro respirar. Se proyecta al exterior una fachada ventilada de zinc con montantes de Oregón de 1x2” y al interior un nivel de instalaciones, esto para dejar libre la estructura y la aislación del proyecto, eliminando los puentes térmicos. La fachada de madera es de elementos de Oregón de 1x2” y 1x4” intercalados, esta se diseño sin tornillos a la vista, tanto por estética como por protección de la madera, prefabricando abajo y luego montando. Todas las maderas interiores y exteriores están protegidas con Osmo.

¡Comparte nuestro contenido!