Casa la Trufera. Restitución material de un galpón existente

Empresa / oficina: Rodrigo Aguilar

Arquitecto a cargo: Rodrigo Aguilar

Ingeniero Estructural: Ginnia Moroni O.

Cliente:  Carmen Domínguez F.

Ubicación: Lago Ranco

Ingeniero: Ginnia Moroni O.

País:  Chile

Superficie construida: 143 m2

Año de construcción: 2019

Fotógrafo: Carmen Domínguez F.

Ir al Sitio Web

Al cabo de los últimos años, y a la luz de algunos procesos de orden global como la crisis climática y la consideración sobre el carácter limitado de los recursos naturales, la arquitectura ha comenzado paulatinamente a problematizar la condición material del hecho construido, planteando interrogantes cada vez más urgentes de responder, especialmente referidas a las posibilidades de reutilización y durabilidad en el tiempo de los recursos, llevando también la discusión al cuestionamiento sobre el carácter imperecedero que supuestamente se había atribuido a la arquitectura.

En relación a lo anteriormente expuesto, en “Echar a perder: un análisis del deterioro”, una excepcional investigación sobre los procesos de degradación material, Kevin Lynch pone de manifiesto que las nociones de cambio, decadencia, transformación y reutilización -inherentes a los procesos de degradación de la materia-, deberían ser aspectos necesarios para la construcción de lugares más respetuosos con el medio ambiente.
Tomando en cuenta que la arquitectura tiende a ordenar una cantidad de materia, para proveer del espacio necesario al interior del cual transcurren las actividades cotidianas del ser humano, una pregunta contingente de elaborar es si la materia, que en términos generales no desaparece sino que se transforma, es susceptible de recuperar para darle nuevamente un provecho arquitectónico, alargando su vida útil y mejorando la eficiencia en términos de economía y cuidado medioambiental.

Quizás las posibles respuestas a este cuestionamiento sean las que se encuentren subyacentes en el diseño de la casa que se presenta a continuación, emplazada en medio de un terreno de casi 4 hectáreas en el sur de Chile, plantado de Encinos para el cultivo de trufas.
A partir de la adquisición de un antiguo galpón granero de aproximadamente 80 años de antigüedad ubicado cerca del predio, el primer desafío de la vivienda consistió en la reutilización de las viejas maderas nobles de la edificación para aprovecharlas en la nueva casa. De esta forma, y en una cierta referencia a la centenaria tradición de la minga practicada en el archipiélago de Chiloé, en la que en una labor colectiva un grupo mancomunado de personas es capaz de trasportar una vivienda desde un lugar a otro, la primera operación del proyecto consideró la selección, catastro, catalogación, desarmado y posterior traslado de los elementos constructivos esenciales para dar un nuevo uso a este conjunto de materiales.

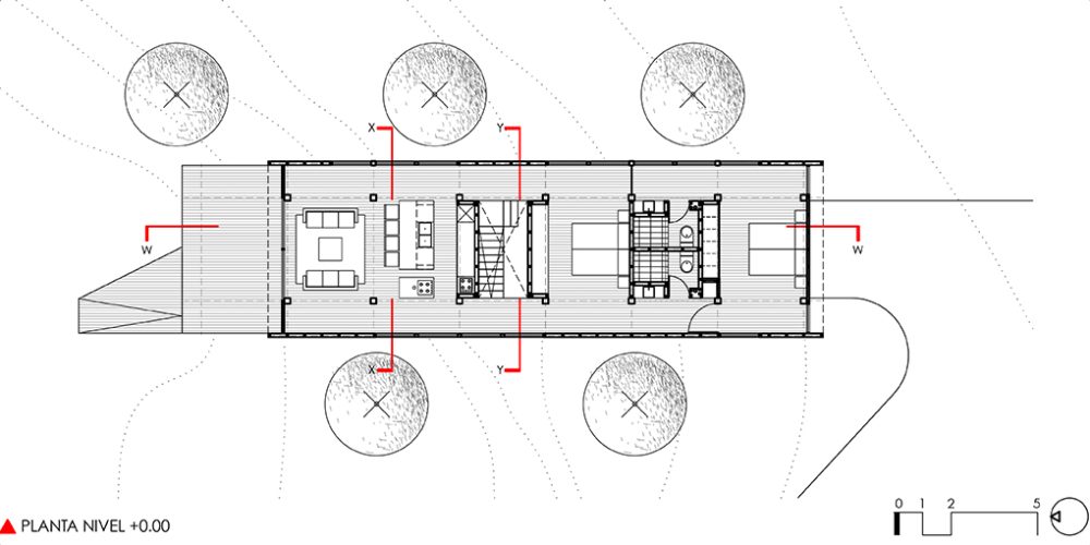
A partir de esta operación, se decide proyectar un volumen monolítico a dos aguas, a partir del rescate de la tipología estructural del galpón, soportado sobre dos muros paralelos de Hormigón Armado, que salvan la pendiente del terreno y permiten la configuración de los espacios de servicio de la vivienda: un estacionamiento, una leñera y la escalera de conexión a la planta principal.
El volumen superior se ha diseñado como un espacio unitario configurado por una serie de pilares, hombros, diagonales y vigas de madera de roble trasladados del granero original, que definen un perímetro de circulaciones y un conjunto de espacios que se dividen en un área de día, compuesta por el estar, comedor y cocina; y un área de noche, constituida por un dormitorio principal, dos baños y un espacio de trabajo que puede transformarse en un dormitorio de visitas, a partir de un límite móvil diseñado en una tela de terciopelo granate.

Exteriormente, el volumen principal de la casa se ha trabajado con una tabiquería de madera y con una piel envolvente para la cubierta y los paramentos laterales a partir de la recuperación de planchas de acero galvanizado del granero, oxidadas por el paso del tiempo. Las fachadas Norte y Sur en tanto, se revisten con madera de roble y consideran las aperturas principales de la casa hacia el paisaje circundante.
Finalmente y tal como mencionábamos al inicio, el trabajo proyectual pretende establecer una lectura de rescate patrimonial y a partir de un ejercicio de recuperación selectivo, una posibilidad de cuidado medioambiental con énfasis en la restitución y reciclaje material.

¡Comparte nuestro contenido!