El encargo para una segunda vivienda se desarrolla en un terreno escarpado en el borde costero, debiendo albergar un modo de vida totalmente distinto al de la ciudad.
Este se basa principalmente en la posibilidad permanente de reunirse grupalmente y en una permanente relación entre el entorno y los espacios interiores.
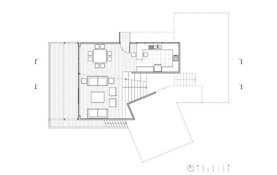
Es por esto que dispusimos que los espacios se “gastaran” principalmente en las áreas públicas y en los exteriores. Los dormitorios se transforman así en simples “dormideros”: lugares apartados con el único fin de lograr un buen descanso.
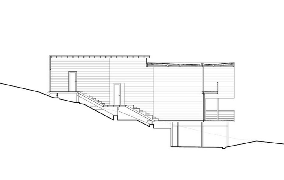
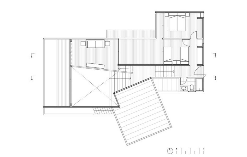
La pendiente del sitio se aprovechó para disponer 3 volúmenes que se ordenan en medios pisos a medida que se asciende en el cerro, generando cada nivel sus propias vistas, pero en ángulos diferentes, enmarcando distintos escenarios.
El primero de ellos de doble altura, contiene los espacios comunes y la cocina. El segundo y el tercero contienen los dormideros y baños. Todo esto se articula mediante una gradería-escalera sobredimensionada, que recorre todo el proyecto y que es el punto principal de encuentro. Este eje de circulación principal se conecta a su vez con todas las circulaciones y terrazas exteriores, las cuales recorren todo el perímetro de casa, generando diversas formas de acceder tanto a los espacios públicos como a la terraza principal.
Fotografía: Francisca Domínguez / Altamirano Armanet
[unitegallery Laguna_verde]












