Una casa entre medianeros
Una casa de un solo nivel de un metraje con alta ocupación de suelo en un sitio largo entre medianeros, con uno de los lados cortos hacia la calle y hacia una plazoleta sin más atributos que sus árboles y su largo.
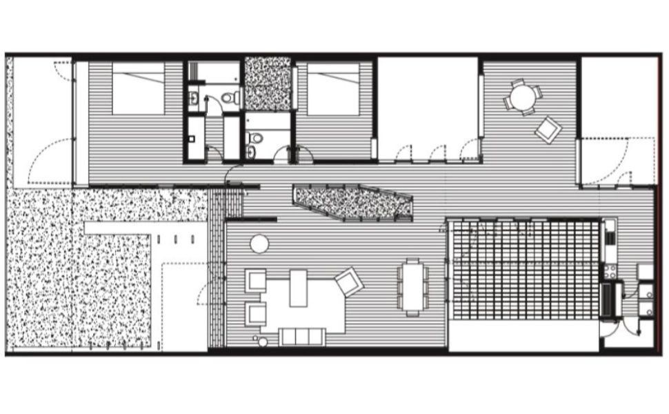
Una casa convencional (como la de los vecinos) y por sobre todo funcional, además de una casa patronal chilena en un terreno escueto de casi 280 m2 como petición del matrimonio. Una casa para dos personas que comienzan su vejez.
La síntesis de estas variables, y otras más o menos gravitantes, recayeron en una operación de diseño intencionadamente elemental; esparcir el programa a toda la superficie del terreno, como una suerte de mancha que se confina en límites conocidos y que deja como rastro zonas oscuras y zonas vacías. Con esto se desarrolla una estrategia de ocupación que maximiza las posibilidades entre terreno y programa entregando una nueva variable, el patio.
Tal operación permite comprender la extensión de la vivienda no solo a los m2 construidos, sino también a estos nuevos recintos exteriores con usos y fines distintos, que acompañan, animan y extienden a cada recinto interior que corresponda.
La morfología cartesiana de la planta es desequilibrada y transgredida por las múltiples relaciones cruzadas y oblicuas que permiten la composición descalzada de las partes.
Una tabiquería de madera de estructura desnuda cruza la casa en todo su largo acompañada de un set de vigas laminadas repetidas a una misma distancia, dispuestas en el eje de cada pie derecho, conformando un artefacto que unifica, mide, da ritmo a la vida en la vivienda y se encarga de todas aquellas transacciones entre recintos interiores y exteriores. Los tabiques se descalzan paralelamente del eje para medir y definir los recintos en cuanto las vigas se muestran en una franja continua entre el acceso y el fondo del sitio desvaneciendo los límites físicos, atando relaciones. Este elemento corresponde a su vez a la franja central del sostén estructural de lo construido, una especie de punto de equilibrio que media entre una zona rígida y compacta con mayor densidad de muros y una zona abierta que carece de trabas transversales, las vigas que cruzan de una situación a otra, terminan por amarrar al sistema completo.
Si bien la obra busca la extensión de su realidad interna, esta encuentra un complemento en la presencia del parque; los grandes ventanales del salón permiten atravesar la casa desde la cocina, ubicada en el fondo del sitio, hasta el final del parque, mirar desde un recinto exterior de la casa a ese otro exterior ya fuera de ella y de dominio público. A su vez la habitación principal abre todo su frente para gozar de aquel exterior.
[unitegallery Obra_casalikidambar]















