Casa Los Pinos

Empresa/Oficina: Espiral Arquitectos

Arquitecto a cargo: Jorge Brady, Manuel Godoy

Ingeniero estructural: Sebastian Carcamo

Cliente: Pablo Caceres, Macarena Cruz

Ubicación: Reñaca, Viña del Mar

Pais de obra: Chile

Superficie construida:101-300

Año: 2023

Fotografo: Marcos Zegers

Categoría: Categoría A: Obras que comprendan hasta 1.000 m2 construidos

DOCUMENTOS ADJUNTOS

© Derechos reservados por sus autores intelectuales.

Memoria del proyecto

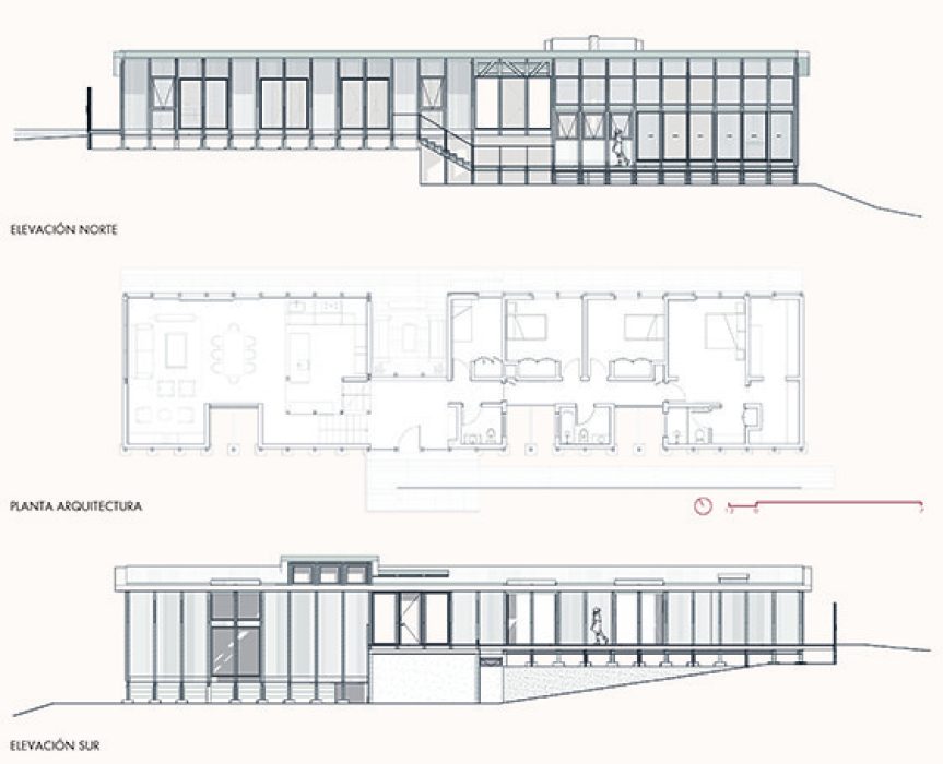
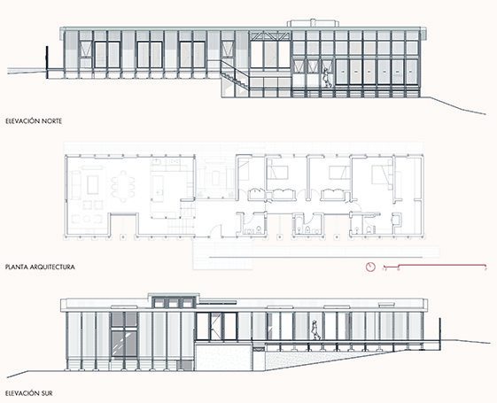
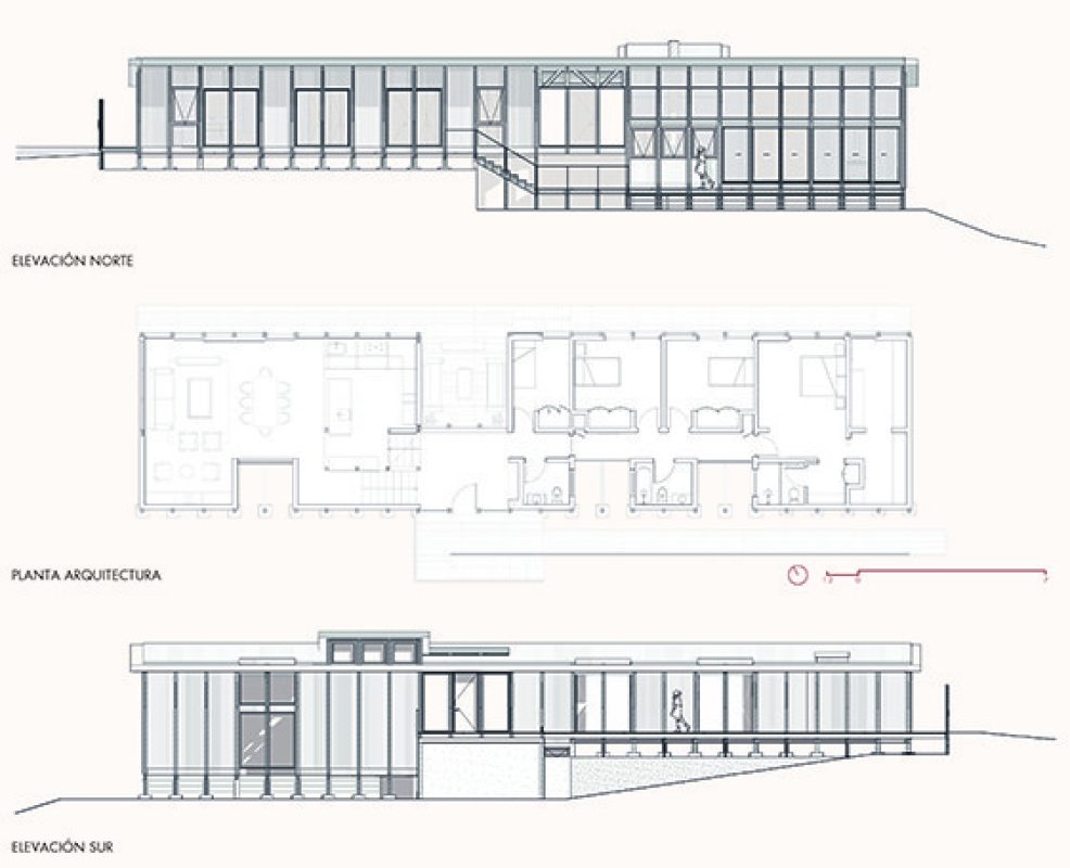
El proyecto se concibe como una vivienda para dar refugio a una familia, en armonía con el entorno de la zona alta de Viña del Mar. Cuyo clima templado y su vaguada costera se infiltran entre bosques de pinos y numerosas quebradas.

Combinando entre estructura y piel, la vivienda va cerrando sus bordes estratégicamente, mediante paramentos opacos hacia el sur para genera privacidad con los vecinos, y se transparentan hacia el norte para permitir el ingreso de luz y ventilación.

Hacia los exteriores de la casa, se proyectan circulaciones que la envuelven, la rampa al sur acompaña los patios de luz, vistas interiores parciales y acentos en la vegetación. El corredor al norte acompaña al paisaje y la topografía del terreno, transformándose en escalera y graderías hacia el jardín.

Innovación en el uso de la madera

El diseño se concibe desde su estructura modulada, una sucesión organizada de 26 marcos (ejes A – Z), muy similares entre sí, y que se distancian 122 cm. unos de otros. Estos marcos, de composición liviana, esvelta, de nudos y uniones, dan cuerpo a la estructura portante de esta casa. La madera surge como el material más indicado para trabajar el lenguaje tectónico. La grilla de 122 cm por 122 cm., busca optimizar los largos comerciales de la madera y se trabaja con uniones a “media madera”, para asegurar la configuración espacial según las necesidades programáticas del proyecto. El pre-armado de marcos se hizo en terreno, acelerando luego el proceso de montaje y armado, disminuyendo las faenas húmedas y acelerando el proceso de obra. Asimismo, todas las maderas fueron de fabricación nacional y cercana a la obra, reduciendo así la huella de carbono, respecto a otros materiales de construcción.

Desempeño Técnico

Los marcos estructurales, montados in situ, permitieron una obra limpia, reduciendo tiempos y humedad durante la construcción. La estructura descansa sobre pilotes, lo que evita el contacto directo con el suelo, protegiendo la madera de la humedad y agentes bióticos. La respuesta bioclimática se generó mediante diseños pasivos y materiales complementarios que no comprometen la expresión estructural de la madera. Se propusieron cerramientos opacos hacia el sur para privacidad y protección térmica, y superficies vidriadas hacia el norte para maximizar la luz natural y la ventilación cruzada, junto con un corredor techado por aleros que protegen el sobrecalentamiento desde el norte. Los muros perimetrales se trabajaron con fachadas ventiladas, dejando una cámara de aire entre tabique/fachada; la cubierta se resolvió con paneles compuestos por terminación de acero y aislación de poliestireno de alta densidad.

Propuesta conceptual y/o impacto

El uso de la madera en la estructura portante y la esbeltez de los pilares de la vivienda le otorgan ligereza y honestidad al diseño, la madera no solo resuelve la estructura, sino que define la identidad espacial y formal de la vivienda. El diseño modular y repetitivo de marcos pre-armados, permitieron acelerar el proceso de obra y reducir el impacto medioambiental. Desde el comienzo de la etapa de diseño, la intención fue que los marcos estructurales se hicieran sólo mediante el uso de maderas de dimensiones comerciales, certificadas y cercanas a la obra, y que, no obstante, por medio de respuestas creativas de nudos y uniones de piezas, permitieran generar espacios amplios, fluidos y alturas notables. El proyecto demuestra cómo la arquitectura en madera puede responder con eficiencia y belleza a los desafíos contemporáneos de habitabilidad, sustentabilidad y economía de medios.

¡Comparte nuestro contenido!