Empresa / oficina: LA CIUDAD POSIBLE
Arquitecto a cargo: Alan Fox Igualt
Ingeniero Estructural: Sergio Yefi Cárcamo
Cliente: Mayling Yuen Espinoza/ Nicolás Maturana Arizpe
Ubicación: Condominio Los Copihues, Nueva Braunau, Comuna de Puerto Varas
Ingeniero: Sergio Yefi Cárcamo
País: Chile
Año de construcción: 2022
Tipo de construcción: CONCON
Fotógrafo: Alan Fox Igualt
DOCUMENTOS ADJUNTOS
Descripción del proyecto
El encargo parte como un experimento en el uso tanto estructural como climático y expresivo de la madera. Tanto la estructura completa como la envolvente debían ser de madera tratada para los elementos resistentes como pilares y cerchas aireadas, y reciclada para los revestimientos interiores. Así también, para coincidir con la visión de La Ciudad Posible, fundación que promueve este experimento proyectual, la mayor cantidad de elementos posible debían provenir del mundo del reciclaje. Así, ventanas, puertas y hasta las escaleras recicladas a partir de otras construcciones, conviven con lo nuevo construido. El partido general de la casa se acomoda en dos niveles, a la pendiente del terreno, quedando con una vista panorámica y lejana a una serie de sierras, volcanes, y finalmente, la Cordillera de los Andes. Se apoya la casa en poyos aislados de hormigón armado enterrados más de 80 cm en el terreno.
Innovación en el uso de la madera
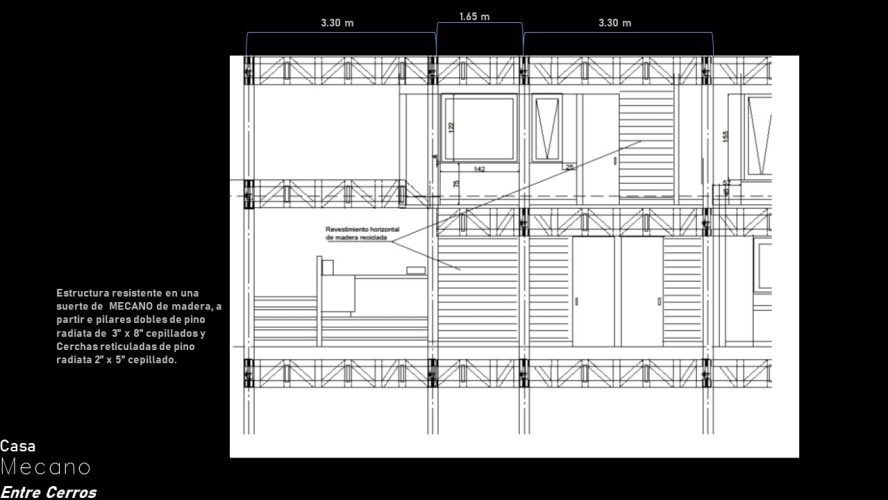
Se concibió la estructura resistente de la casa bajo el concepto de mecano, en sentido que se pre-fabricó los elementos resistentes como cerchas y pilares en un galpón, para luego armar la estructura en el terreno, por medio de uniones especiales metálicas y pernos pasados. La vivienda es desarmable, y permite que se construyan los elementos estructurales a pesar del clima lluvioso de la zona sur del país. Se diseñó las partes y piezas de este mecano de modo de favorecer al máximo el aprovechamiento de la madera. Es decir, se moduló en cerchas y pilares que permitiesen generar recintos en base a múltiplos de 3,30 mts. Por consiguiente, se generaron crujías de 3.30 mts y combinaciones con otras de 3.30 + 1.65 mts como máximo.
Desempeño Técnico
Se utilizó piezas de madera de pino radiata de para los pilares dobles, y para las cerchas reticuladas. Tanto los pilares estructurales como las cerchas reticuladas, se trataron con CCA (Arseniato de Cobre Cromatado), para evitar la pudrición y la acción de insectos. Por otro lado, la decisión de levantar la casa del suelo, responde tanto a aislar de la humedad, como también para aumentar la durabilidad de ella frente a hongos e insectos. Para los paquetes de tabiques, se utilizó tableros de OSB de 11.1 mm, sobre madera de pino radiata tratada de 2”x3” cepillado. También para los pavimentos, se utilizó tablero de terciado de 19 mm con vitrificado orgánico, sobre el cual, en zonas como la cocina, estar principal y el segundo nivel, se instaló una capa de hormigón pobre de 40 mm para una mayor aislación térmica pero sobre todo acústica.
Propuesta conceptual y/o impacto
La casa apuesta, primero que todo, a una estructura completamente en madera, lográndose grandes luces y alturas interiores, por medio de cerchas aireadas reticuladas que permiten aportar mayor espacio y sin embargo también resistencia mecánica. Se eligió madera como material para el 80% o más de la vivienda, por tratarse del principal material, que en Chile, de gestionarse su producción de manera apropiada, aporta la mayor sostenibilidad en la construcción. Se pretende además generar una valoración de la madera como material no sólo asequible y apropiado, sino que también sostenible y económico y de gran calidad tanto constructiva como visual. Con ello, se pretende aportar a derribar el mito cultural de que la madera no constituye “material”. La estrategia climática para la casa, tiene que ver con incorporar un invernadero en el sector norte el que, a modo de un estar informal, aportará calor tanto al estar principal como a la cocina. Por otro lado, se aplicó el concepto de ventilación cruzada pasiva. La aislación térmica es una suerte de fachada ventilada con aplicación de lana de oveja, un material generado en la zona.











¡Comparte nuestro contenido!