Casa Muelle está ubicada en la isla grande de Chiloé, contemplando la entrada del fiordo de Castro y la ciudad del mismo nombre. Se emplaza en una ladera de la península de Rilan con una pendiente que cae hacia el mar, entre arrayanes y Canelos, permitiendo acceder a la vivienda desde el territorio o el maritorio.
El proyecto fue planteado como un conjunto rural que permitiera estar resguardado junto al fuego, de las inclemencias del clima húmedo y frío del Sur, contemplando el espectacular y cambiante paisaje de Chiloé.
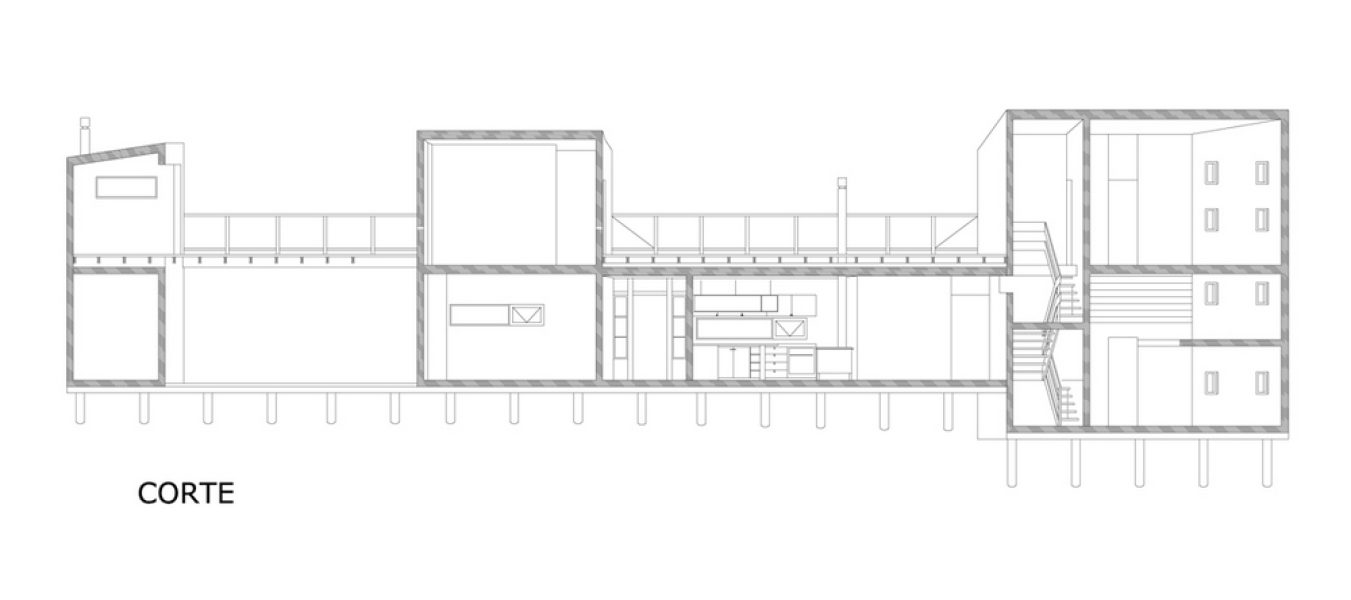
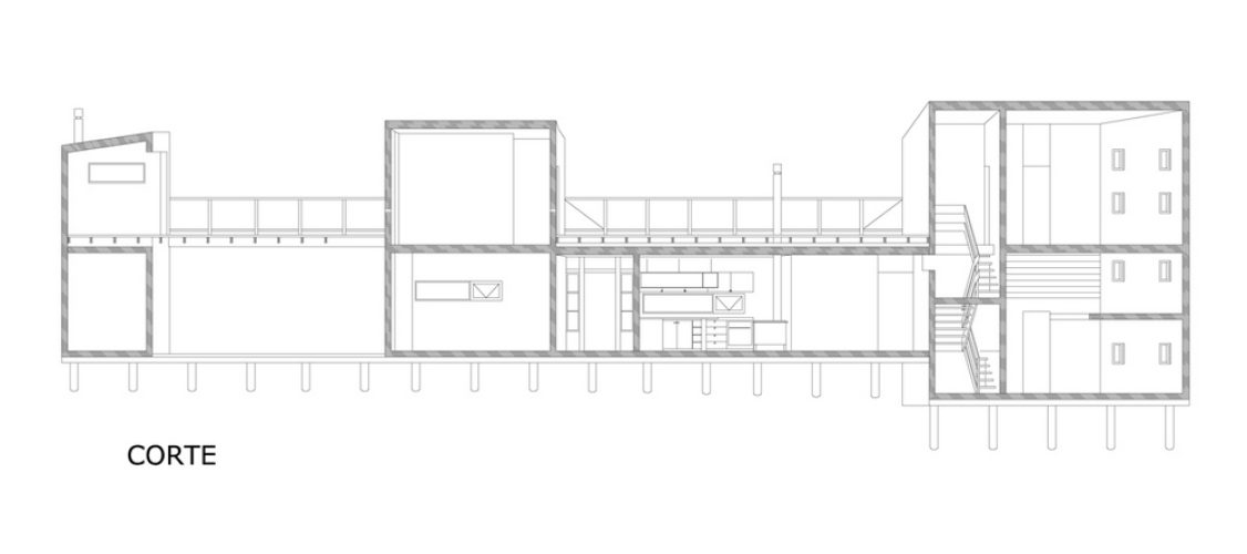
El conjunto está compuesto por 3 volúmenes palafiticos conectados por pasarelas, orientados al norte para capturar el sol en su interior y modelados por el fuerte viento predominante, reinterpretando contemporáneamente la idea de conjunto rural propio de una forma de habitar en el archipiélago de Chiloé.
El primer Volumen es de servicios y quincho, el segundo de los padres y el tercero los dormitorios de 6 hijos en 2 niveles.
Los volúmenes principales, están conectados en 2 niveles por el volumen del encuentro, que contiene la cocina, el comedor, un estar en desnivel, a modo de fogón como punto de reunión en torno al fuego y una gran terraza que se trasforma en el mirador de este gran muelle en tierra, que sitúa al habitante a una gran altura sobre el nivel del mar, en expectación frente a una gran y conmovedora escala de paisaje.
Para la materialización del sueño de los propietarios provenientes de Santiago, se utilizaron las tecnologías propias de la cultura de la madera de Chiloé, y maderas nativas extraídas de un bosque siempre verde: mañío, tepa y ulmo que dan rojos y amarillos en el interior para lograr la sensación de calor frente al azul paisaje, tejuela de alerce en su piel exterior plateadas por el viento y la lluvia y pilotes de ciprés para posarse en el terreno con una madera noble y resistente.
[unitegallery Casa_muelle]































