Casa Nogales esta construida en un terreno de 90.000 m2 en medio de una gran plantación de olivos, en donde se contempla a lo lejos la imponente cordillera.
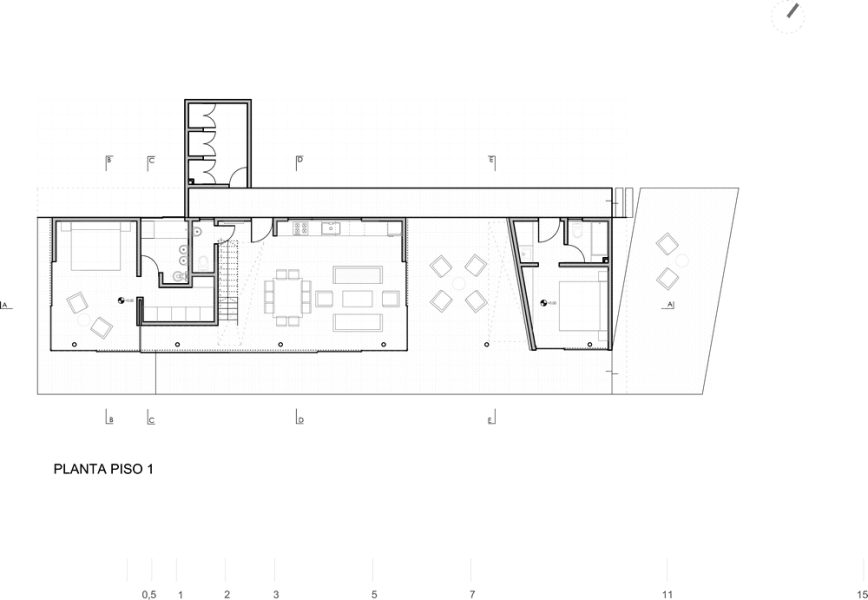
La obra se planteó como dos volúmenes independientes cubiertos por un techo común, creando entre éstos un patio exterior protegido del fuerte clima de la zona. El volumen principal tiene dos niveles, en el primero junto al acceso se encuentra un espacio abierto con cocina, comedor y living; hacia el oriente está el dormitorio principal.
En el segundo nivel, se encuentra un taller con ventanas dispuestas de distintas maneras, para controlar vistas. El otro volumen con su dormitorio, baño y kitchenet independiente, está diseñado para los invitados que visitan la casa.
La elevación norte tiene grandes ventanales que permiten abrir el espacio, rompiendo la relación entre el interior y exterior.
La casa explora el tema de los corredores y espacios de sombra intermedios típicos de las casas tradicionales del campo chileno.
Fotografías: ©Pablo Blanco Barros
[unitegallery CasaNogales]



























