Descripción del Proyecto
Casa para invitados se encuentra ubicada en el acceso norte a la ciudad de Chonchi en Isla Grande de Chiloé, la cual busca conjugar los requerimientos de una vivienda, con la creación de una nueva alternativa de ingreso económico para la mandante.
De esta manera, el presente trabajo se sustenta sobre dos requerimientos fundamentales que dan forma al proyecto: como primera necesidad, se plantean todas las exigencias de la residencia como tal; lo que a la vez, se compatibiliza con el desarrollo de un hospedaje, de esta manera el proyecto se capitaliza a sí mismo mediante el fomento y desarrollo turístico que propone la zona, apostando al nuevo escenario de las tecnologías de información en cuanto a posibilidades de ofrecer tu propia vivienda como opción de alojamiento.
El terreno donde se emplaza el proyecto corresponde a un sitio relativamente plano, de 5000 metros cuadrados y sin mucho que ofrecer desde el mismo. En los costados norte, sur y poniente, colinda con otras viviendas aisladas. Mientras que en el lado oriente, ofrece un paisaje que cruza por el mar interior de Chiloé hasta la cordillera de los Andes en el territorio chileno continental.
Dichas condiciones territoriales son las que direccionan la vista de la edificación en un solo sentido, lo que, a la vez, expone un problema de privacidad en las tres aristas restantes de la casa tanto para los residentes, como para los vecinos. Es por esta razón, que las fachadas poniente, norte y sur se transforman en un corredor semi-exterior, el cual es envuelto por una celosía de madera, generando un espacio que permite la interacción entre el medio interior y exterior, siendo a la vez el corredor que unifica acceso a la vivienda privada y el sector de invitados u hospedaje.
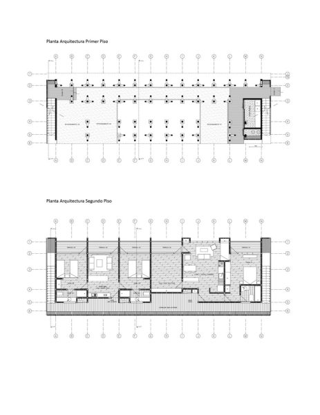
Como estrategia general, el proyecto propone un solo volumen que se levanta tres metros desde el suelo, el cual alberga dos programas que conviven; un tercio de la edificación corresponde al sector de la vivienda, mientras que los dos tercios restantes pertenecen al hospedaje o área de alojamiento. Sumado a lo anterior, cada zona cuenta con un acceso independiente ubicado en ambos costados, los que a la vez se unen por el corredor semi-exterior.
En el sector de arrendamiento para huéspedes, se encuentran dos habitaciones, cada una con baño privado, la cuales comparten un espacio común con living, comedor y cocina integrada. En cuanto al sector de la vivienda, esta consiste en un dormitorio con un baño privado, una sala de yoga o espacio multiuso y un ambiente de living, comedor y cocina integrada. En la planta baja o primer nivel, se encuentran las instalaciones de lavado, bodegaje y tres estacionamientos cubiertos.
En cuanto a materiales el proyecto no pretende ser lujoso o de materiales de alto standard, Su envolvente semi translucida consiste en pino IPV, el interior de tabla de pino aserrado dispuesto horizontal y vertical, dejando una sensación rustica, piso de pino seco cepillado, los pilares de Luma.
Así, Casa para invitados presenta una propuesta a problemáticas relacionadas al avance de la tecnología y arrendamiento, en contraposición a una vivienda habitada por su dueño. Un proyecto que plantea a la arquitectura como protagonista, donde un solo volumen se apodera del terreno, lo que funciona a modo tanto de enganche, como de atractivo en sí mismo para los visitantes. Finalmente, un volumen que media entre residentes y visitantes.
Fotografías cortesía de Marcos Zegers.
[unitegallery Casa_para_invitados]









