Representante: Emiliano Ruidiaz Riffo
Profesión: Arquitecto
País: Chile
Empresa: Medio Arquitectura
Arquitecto: Emiliano Ruidiaz Riffo
Pais de obra: Chile
Ubicación: Villarrica
Año: 2022
Fotografo: Emiliano Ruidiaz Riffo
Ciudad: Villarrica
Superficie:field_60a2165eeedae
Categoría: Residencial
DOCUMENTOS ADJUNTOS
Descripción del proyecto
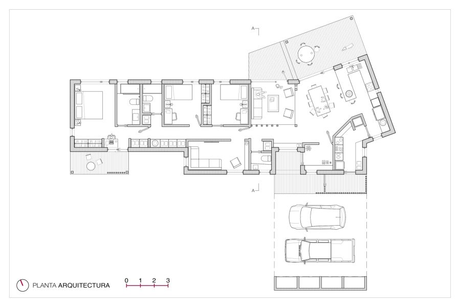
Casa POLO es una vivienda unifamiliar ubicada en el área rural de Villarrica, diseñada para una familia que busca un hogar luminoso, con amplios espacios comunes y eficiencia energética. En un terreno de 5.000 m², el proyecto se sitúa en el extremo sur, entre un camino público y un canelo. La casa se organiza en un volumen orientado de oriente a poniente, con las áreas principales mirando hacia el norte para aprovechar la luz invernal y ofrecer vistas panorámicas al bosque nativo. El volumen se divide en dos secciones: la poniente, con áreas privadas (tres habitaciones, dos baños, sala de estar, y un pasillo iluminado con lucarnas), y la oriente, con espacios comunes (acceso, chiflonera, logia, baño de visitas, y un amplio living comedor y cocina). Este último se pliega hacia el interior del terreno para resguardarse del camino y garantizar mayor privacidad.
Innovación en el uso de la madera
En cuanto al revestimiento exterior, se optó tejuelas de roble fabricadas a mano por un artesano local. Estas tejuelas se utilizaron en el lado oriente de la casa, hacia el camino, y en los tres volúmenes que se proyectan desde el techo. Su instalación con fachada ventilada garantiza protección contra la humedad y larga vida útil. No se protegieron contra los rayos UV con el objetivo de que evolucionen con el tiempo, adquiriendo distintas tonalidades según la orientación en la que estén expuestas: algunas captarán la luz de la mañana, mientras que otras se iluminarán con la luz del atardecer.
Desempeño Técnico
La estructura principal es de Pino Insigne, utilizando palos 2x6” para muros exteriores y cielos, y 2x4” para muros interiores. Se usaron tableros de OSB en los muros, posicionándolos hacia el interior de la vivienda, los cuales sirven como elemento estructural y barrera de humedad al mismo tiempo, protegiendo la estructura, todos sellados con cinta FlexiBand de Rothoblaas asegurando la hermeticidad del proyecto. Se usó MDF ultraliviano al exterior de los muros para que pueda soportar la aislación y por sus cualidades permeables que permiten al muro respirar. Se proyecta al exterior una fachada ventilada de zinc con montantes de Oregón de 1x2” y al interior un nivel de instalaciones, esto para dejar libre la estructura y la aislación del proyecto, eliminando los puentes térmicos.
Propuesta conceptual y/o impacto
La madera es el material principal de diseño por ser un material versátil, sustentable y eficiente térmicamente. En el proyecto convive la tradición constructiva en madera del sur de Chile, pero mejorando los detalles constructivos, buscando proteger la madera y utilizarla en su máxima capacidad. En este proyecto se utilizó tecnología avanzada en madera y a la vez la carpintería tradicional de la zona. Creemos relevante y necesario seguir avanzando en el desarrollo tanto de las nuevas tecnologías como de los saberes tradicionales de carpintería, ya que ambos se complementan y potencian logrando muy buenos resultados.











¡Comparte nuestro contenido!