El Arquitecto Chileno Sebastián Undurraga, fundador del estudio UA presenta uno de los seis volúmenes que conforman la totalidad del “Proyecto Calafquen”. Ubicado en la IX Región – Chile. En la rivera sur del Lago Calafquen.
El Terreno cuenta con una superficie de 5.000 m2 y una abrupta pendiente de 60% aproximadamente, la cual entre un intenso bosque nativo, deja entrever, el lago Calafquen.
A partir del extenso programa solicitado por el cliente el Arquitecto se vio en la obligación de relacionar a este con el bosque y subordinar el diseño a la exigencia de no tocar el bosque nativo.
Nace entonces, la necesidad de generar seis volúmenes independientes cada uno con un programa específico y la capacidad de funcionar individualmente.
Se logra así, un tejido de recorridos vernáculos, entre el bosque existente y los sólidos volúmenes oscuros.
La superficie construida de “Proyecto Calafquen” es de 550m2 subdividida en el siguiente programa:
• dormitorios secundarios
• dormitorios privados
• estar familiar, living, comedor, cocinas
• oratorio
• áreas de servicios, terrazas y bodega
• senderos de contemplación, y meditación que re-conocen el terreno
Casa Quincho (Q)
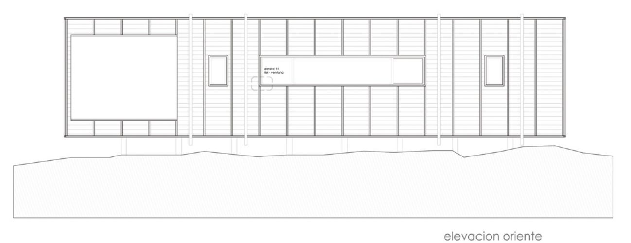
Formas simples: se busca disminuir, por medio de su envolvente y sus materiales aislantes, las pérdidas de temperatura (thermal lag), en invierno el sol entra a través de los árboles deshojados, generando un aumento de la temperatura interior gracias a las ganancias de calor debido a su color negro.
Durante el verano es el tupido bosque y las celosías las encargadas de proteger a la vivienda de las altas temperaturas.
Entre árboles, aparece la extensa rampa con su suave pendiente, que desciende en toda su magnitud, acompañada longitudinalmente por el muro, rematando en el quiebre, descubriendo delante del lago una terraza protegida, donde el fuego es el anfitrión. Al salir del fogón, hacia el lago, una celosía longitudinal acompaña la fachada, un pasillo recorre el volumen tangencialmente.
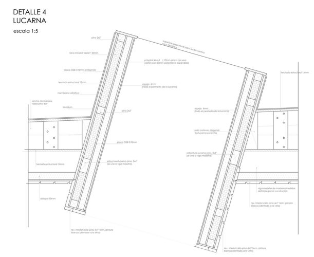
El programa privado, contempla un gran espacio perforado por lucarnas de madera nativa, una cocina incorporada y un baño, además de un dormitorio en suite. Todo esto como la gran butaca a un escenario de potente follaje, un sol filtrado por las hojas verdes y el silencio de un lago presente.
[unitegallery Casa_quincho]













































