Casa Rambla es una vivienda de fin de semana ubicada en el litoral central a 175 km de Santiago, en la comuna de Zapallar. El sitio colinda con la rambla costera y peatonal que une el balneario de Zapallar con el Cementerio de Zapallar, con una vista privilegiada hacia el océano pacifico.
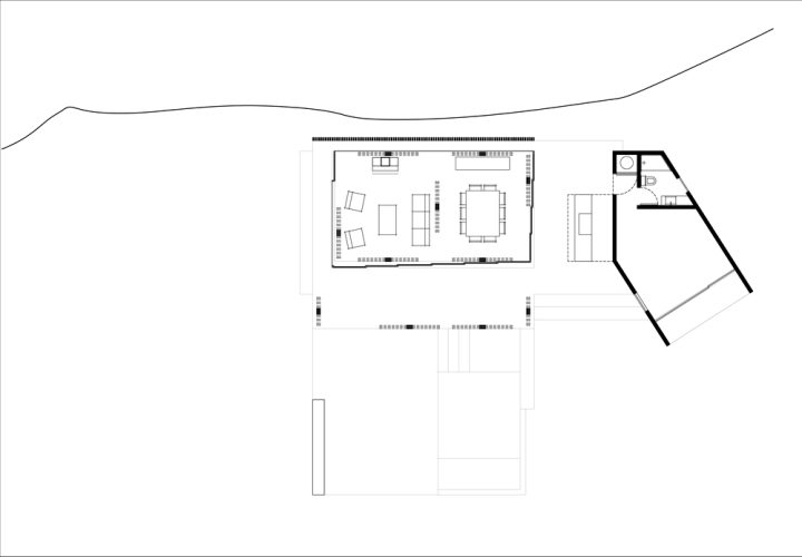
Los espacios se proyectaron de manera que hubiera una continuidad y conexión entre los espacios interiores y los exteriores, y que estuvieran a la vez protegidos del clima costero local, caracterizado por fuertes vientos y exceso de exposición solar poniente.

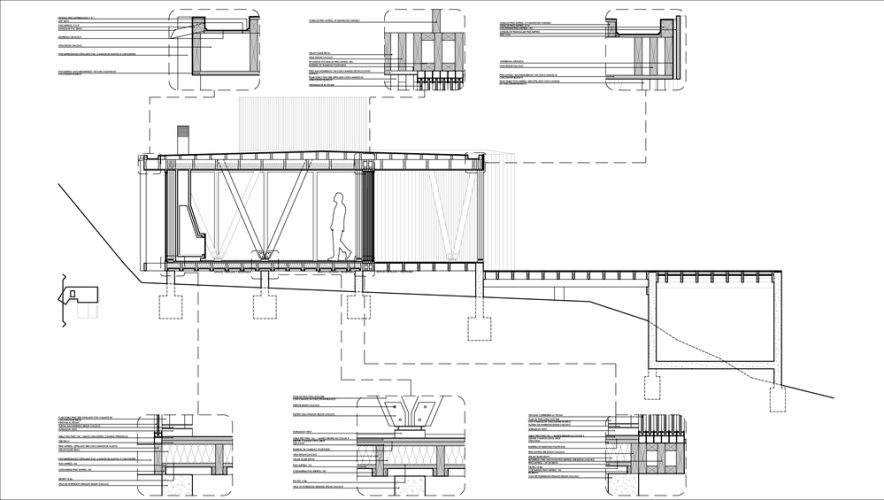
El espacio de quincho, entre el estar y el dormitorio, se proyectó con un techo desplegado para dar salida y ventilación a los humos de la parrilla. Este techo desplegado, es también una lucarna que capta la luz del norte hacia el interior de la obra.
La casa se estructura sobre vigas de hormigón generando un espacio ventilado para prevenir que se transmita la humedad del suelo hacia el interior. Sobre esto se estructuran los volúmenes de madera de pino con pilares en V en los distintos sentidos a modo de arrostramiento. Todas las maderas fueron tratadas con imprimantes blancos para protegerlas de la influencia marina, aumentar su luminosidad y contraste con el paisaje.
Fotografías © Sergio Pirrone
[unitegallery Obra_CasaRambla]






















