Representante: Lucas Maino
Profesión: Arquitecto
País: Chile
Empresa: Lucas Maino Fernández
Arquitecto: Lucas Maino
Pais de obra: Chile
Ubicación: Valdivia
Año: 2021
Fotografo: Marcos Zegers; Fernando Alarcón Luco
Ciudad: Santiago
Superficie:field_60a2165eeedae
Categoría: Residencial
DOCUMENTOS ADJUNTOS
Descripción del proyecto
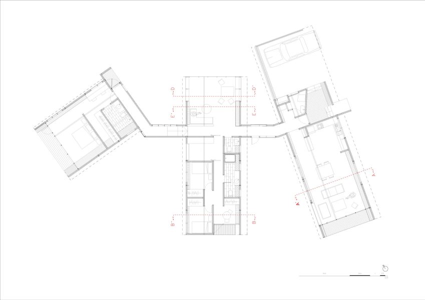
El Proyecto se encuentra a kilómetros de la ciudad de Valdivia, en un terreno boscoso de media hectárea, ubicado en la rivera norte del río Calle-calle. La propuesta busca abrir un espacio de conexión entre el diseño de arquitectura singular y particular en contraposición de las tecnologías de prefabricación y estandarización. Para ello, se utiliza un sistema modular diseñado por la oficina anteriormente, que es empleado para los recintos del programa requerido. La vivienda se emplaza sobre el lugar con menos pendiente del Terreno, y se distribuye bajo dos criterios: el primero consiste en captar toda la luz natural posible dentro del bosque; y el segundo de ellos es rescatar la mayor cantidad de árboles añosos al implantar el proyecto. Bajo esta lógica, nace el característico emplazamiento atomizado de los módulos, los cuales se conectan a través de un corredor, que actúa como eje central del proyecto y el elemento singular de la propuesta. Casa RH es una propuesta única, la cual, gracias a una fracción de soluciones a medida, logra usar en su propio beneficio un sistema modular establecido. Este proyecto híbrido, prioriza resolver asuntos relativos a la orientación, iluminación y respeto por el entorno natural, mientras genera espacios únicos, eficientes y acogedores.
Innovación en el uso de la madera
La madera en Casa RH aparece principalmente como elemento de revestimiento exterior que recubre la zona de circulación del proyecto, al mismo tiempo que también como elemento de quiebre para la vista en algunas zonas. De igual manera, en el interior también aparece como elemento de revestimiento. Como solución innovadora está la utilización de módulos elaborados en fábrica y posteriormente trasladados a la obra. El corredor fue el único elemento que se levantó in situ, pero la obra gruesa de las zonas habitables corresponden en su totalidad a módulos transportables.
Desempeño Técnico
Para los interiores se utilizó madera de pino insigne, machihembrado de ¾. En muros bajo aleros exteriores se emplearon tablas de pino oregón cepilladas de 1×4, mientras que en el revestimiento exterior del corredor central se ocuparon tablones de secuoya aserrados, los cuales se extrajeron del mismo sitio, con los árboles que hubo que remover para el emplazamiento de la casa. Para los exteriores se utilizó protector Algifol incoloro, lo que permitió que la madera de exterior envejezca, cambie de color y de textura, junto con que exista en ella el paso del tiempo. Los protectores exteriores, al no ser una madera de fundamental mantención a veces las protegemos poco frente a la intemperie. Y al ser un proyecto elaborado en su totalidad con paneles Sip, el revestimiento de la casa completa es una segunda capa protectora, por lo que no existe mucha aprehensión a que pueda afectar a la estructura.
Propuesta conceptual y/o impacto
Creo que de las cosas que más recato de este proyecto es que se reutilizó la madera obtenida de los árboles que hubo que remover, la cual se utilizó casi en su totalidad en revestimiento exterior, como también en elementos de jardinería, gradas, revestimientos interiores en zonas puntuales, etc. Es un proyecto, que pasa bastante desapercibido en el terreno. Es de baja altura en relación a su contexto, por lo que no se siente como un elemento invasivo ni tampoco como un objeto ajeno al paisaje, dada su forma que es bastante dispersa. Coloniza de manera muy sutil su emplazamiento integrando el exterior en la obra. Es un proyecto en zona sureña, en donde existe gran elaboración de esta materia prima, volviéndola bastante asequible. Puedo decir que la secuoya de revestimiento no fue elegida: existían en el mismo sitio. Fue una respuesta, casi automática, la de honrar este material que nos brindaron los árboles existentes en el lugar.











¡Comparte nuestro contenido!