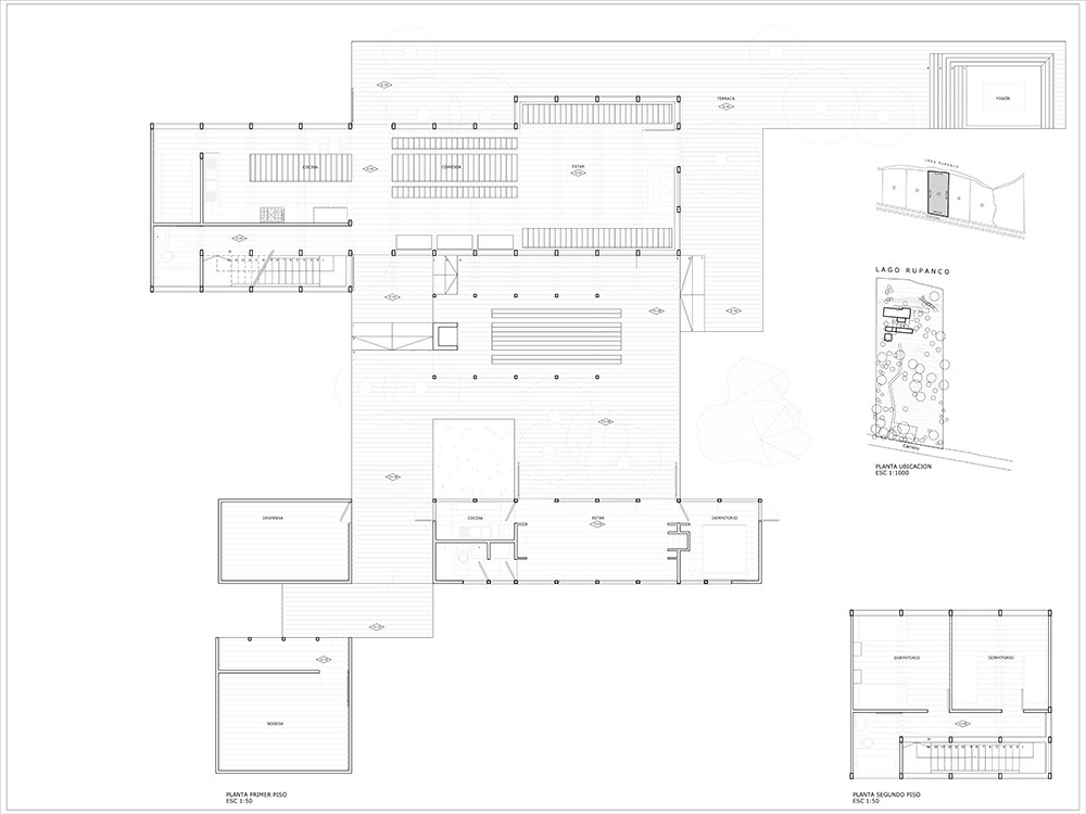
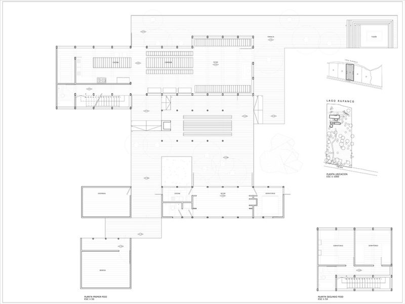
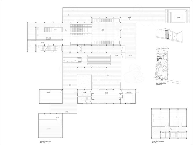
La obra se emplaza en un terreno en pendiente que tiene un bosque con árboles nativos que mira al lago desde una cierta altura, estableciendo una relación con los árboles que la determinan.
La casa tiene un primer volumen de madera que tiene un frente que se extiende hacia el lago en una terraza que incorpora los árboles, donde se construye una mesa larga que se levanta desde el suelo que es la terraza – patio de la casa.
La terraza continúa hacia el lago en un desnivel construyendo un segundo volumen donde la idea era construir un espacio exterior protegido, que permitiera estar en el bosque sin perder las vistas tanto hacia el lago, el bosque y hacia el cielo a través de las ramas de los árboles, lo que determina su altura.
Ver “desde y a través” de la casa, una casa transparente, donde sus pilares se confundieran con los árboles, que no existiera, una casa sin fachadas, sin esquinas.
La casa se construye solo con piezas de madera de 4×8” tanto los pilares como el sistema de vigas “horizontales”, como también el techo con un sistema de doble viga en cada pilar, la escalera y cada uno de los muebles, todos fijos a la estructura del suelo.
Fotografías: Magdalena Squella y Germán Squella
[unitegallery casa_rupanco]









