En un sitio de 5000 m2, ubicado a las afueras de Santiago, se proyectó una vivienda unifamiliar que exigía el uso de la madera laminada como materia principal.
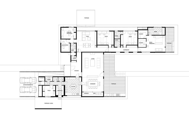
El programa se organiza en 356 m2, distribuidos en un solo piso, emplazado de manera de conquistar una extensa porción de terreno, en un sitio con mínima pendiente, sin la presencia de árboles. El programa se divide en dos vagones, uno de servicio y otro de habitación, unidos por un espacio central con mayor altura donde se ubica el living y el acceso.
La casa se construye sobre un terreno de origen agrícola y con arcilla expansiva, por lo que las fundaciones de la casa se retranquean para protegerlas debajo de un voladizo perimetral de 1.5 metros. Sobre la losa de hormigón armado, se instala un sistema de pilares de madera laminados de un ancho de 56 x 13 cm, dispuestos en direcciones contrarias, que arriostran la estructura y soportan unas grandes vigas laminadas de madera de 1 metro de altura y más de 30 metros de largo. Estas vigas están dispuestas de tal manera de equilibrar voladizos de más de 5 metros en sus extremos.
La cubierta se construye sobre una serie de vigas laminadas distanciadas cada un metro, inclinadas, que van tomando altura dependiendo de los recintos, incorporando una serie de lucarnas que brindan luz natural.
Los muros de la casa son todos de estructura de madera y revestimiento de madera machihembrado hacia el exterior y en el interior con una serie de barreras de aislación de alto estándar, evitando puentes térmicos, construyendo tabiques exteriores de 20 cm de espesor.
Fotografías: Nico Saieh
[unitegallery CasaTH catid=31]




















