Sobre el borde costero emergen las quebradas de vegetación nativa, los cursos de agua y los bosques de eucalipto donde el paisaje habla, dando paso a la contemplación. Premisas que configuran la Casa Tunquén, a 160 km de la ciudad de Santiago.
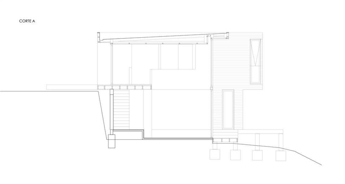
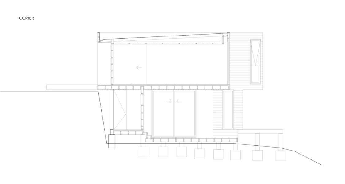
Con la necesidad de maximizar las vistas, entregar la mayor luz natural y resguardarse de los efectos climáticos, se propone una volumetría quebrada posada en el terreno y cuya terraza se construye sobre pilotes hormigonados que persiguen las vistas de sus vecinos inalterables, el Santuario de la Naturaleza y el mar al horizonte lejano.
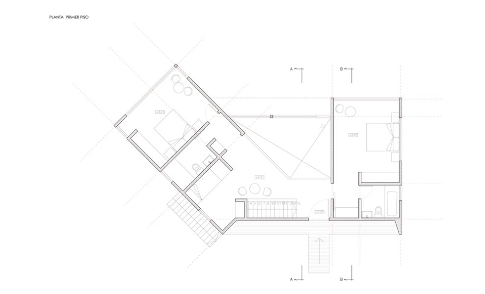
La modulación de esta vivienda familiar para cuatro integrantes (un matrimonio joven con dos niños), la conforma el corazón del volumen, una amplia doble altura, que permite definir los distintos grados de privacidad. En la planta baja, los diáfanos y flexibles espacios comunes, la cocina, el living y el comedor le dan paso a la protagonista terraza frontal.
Las áreas privadas están ubicadas en la planta superior, al igual que el acceso a la casa. La conexión entre espacios está atravesado un puente que inmediatamente diverge frente a la doble altura, por el lado izquierdo, la escalera con estructura en voladizo, por otro a la sala de estar, camarotes en obra y dormitorio principal, volumen con orientación norponiente que atrae en primer plano la vista hacia el mar.
Para lograr la continuidad del paisaje desde el acceso y de todas sus vistas, la madera se hace significativa para la realización de este proyecto, tanto como materia noble y cálida, como elemento estructural. Fiel a la línea constructiva antes empleada y a la configuración de ésta, es que la utilización del revestimiento horizontalmente hace que la fachada ventilada permita mayor aislación térmica.
La Casa Tunquén sintetiza los actos cotidianos de la vida familiar y la constante búsqueda de lo que el paisaje nos quiere decir.
Descripción e imágenes enviadas por el equipo del proyecto Casa Tunquén
[unitegallery ObraCasaTunquen]




















